Vente Appartement 17370, Saint-Trojan-les-Bains france 328 000 €
Descriptif du bien
L'agence 'MON BIEN A LA MER', spécialiste de l'immobilier neuf bords de Mer, vous présente :
L'exception sur l'Ile d'Oléron :
Plein front de Mer, face au soleil levant au 8 bd de la Plage à SAINT TROJAN.
Une restauration d'un bâtiment historique de grand standing :
Seulement 22 appartements et 11 Maisons, dans un domaine paysager privé avec piscine chauffée.
Frais de notaire réduits.
Prestations de qualité, chauffe-eau thermodynamiques+panneaux rayonnants, ascenseur, parkings, caves, grande hauteur sous plafonds, parquets, domotique, placards terminés, carrelage Porcelanosa, appartements traversants
: tout a été pensé pour votre confort.
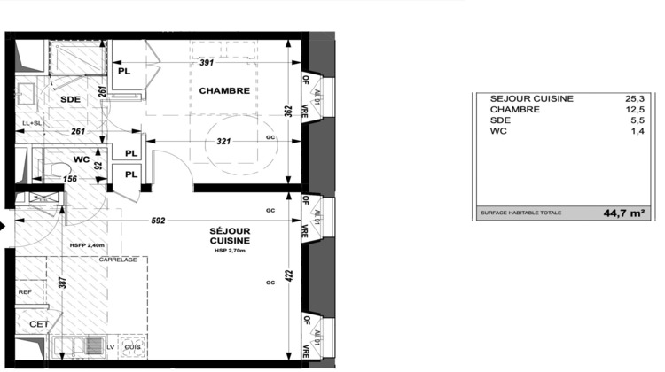
T2 en front de Mer, 2è étage.
Séjour 25m2, wc séparé, suite parentale.
Parking et cave inclus.
Livré 3è trimestre 2027.
Nous consulter
Honoraires à la charge du vendeur. Non soumis au DPE. Les informations sur les risques auxquels ce bien est exposé sont disponibles sur le site Géorisques : georisques.gouv.fr.
Votre conseiller MON BIEN A LA MER : Gérant - .fr MON BIEN A LA MER
Carte T CPI 2201 2018 000 025 040
RCP ACM IARD B1 7025278
- Type de bien : Appartement
- Surface : 44 m²
- Localisation : France - Nouvelle-Aquitaine - Charente Maritime
- Ville : Saint-Trojan-les-Bains
- Code postal : 17370
- Annonce créée le 30/01/2026





