Vente Appartement 13210, SAINT REMY DE PROVENCE france 175 000 €
Descriptif du bien
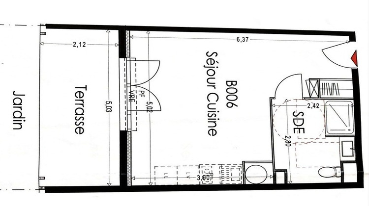
Saint-Rémy-de-Provence – Studio en rez de chaussée avec jardin Vivre ou investir à Saint-Rémy-de-Provence, c'est choisir un art de vivre provençal recherché, au cœur des Alpilles, entre nature préservée, patrimoine, commerces de qualité et centre-ville animé. Situé au sein d'une résidence neuve, sécurisée et de standing, ce studio de 30,92 m² en rez-de-jardin offre un cadre de vie calme et confortable, dans un environnement résidentiel apprécié. L'appartement se compose d'une pièce de vie lumineuse ouvrant sur une terrasse et un jardin privatif, d'une salle d'eau avec WC, et bénéficie d'une orientation sud-ouest assurant une belle luminosité naturelle. Une place de stationnement privative complète ce bien. Conforme aux normes RT2012 et aux normes acoustiques NRA, le logement dispose d'un chauffage individuel et d'un chauffe-eau thermodynamique, garantissant une excellente performance énergétique, un confort optimal et des charges maîtrisées. Aucun travaux à prévoir, avec les garanties liées à une construction neuve. Idéalement situé, à seulement cinq minutes en voiture du centre-ville de Saint-Rémy-de-Provence et à environ un kilomètre des commerces, écoles et services médicaux, ce bien convient parfaitement à un premier achat, à un pied-à-terre en Provence ou à un investissement locatif dans l'un des villages les plus prisés des Bouches-du-Rhône. Bien rare sur le secteur. Pour tout renseignement complémentaire, contactez-moi. Nombre de lots de la copropriété : 78, Montant moyen annuel de la quote-part de charges (budget prévisionnel) : 0€ soit 0€ par mois. Les honoraires sont à la charge du vendeur. Les informations sur les risques auxquels ce bien est exposé sont disponibles sur le site Géorisques : www. georisques. gouv. fr. Réseau Immobilier CAPIFRANCE - Votre agent commercial (RSAC N°853 399 384 - Greffe de TARASCON) Agnes BRAITHWAITE Entrepreneur Individuel 06 66 30 57 57 - Réf.933193
- Type de bien : Appartement
- Surface : 31 m²
- Localisation : France - provence-alpes-cote-d-azur - Bouche-du-Rhone
- Ville : SAINT REMY DE PROVENCE
- Code postal : 13210
- Annonce mise à jour le 14/02/2026





