Vente Appartement 71100, SAINT-REMY france 201 000 €
Descriptif du bien
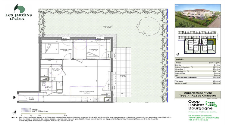
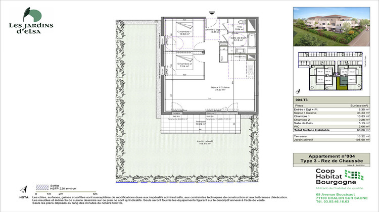
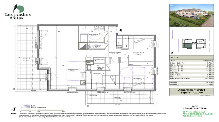
LES JARDINS D'ELSA. TRAVAUX EN COURS ! Les Jardins d'Elsa ? Votre nouvelle adresse à Saint-Rémy (71) Bienvenue aux Jardins d'Elsa, une résidence intimiste idéalement située à Saint-Rémy, commune dynamique et agréable de Saône-et-Loire, aux portes de Chalon-sur-Saône. Un emplacement de choix A deux pas du centre-bourg, vous profitez d'un environnement pratique et vivant avec toutes les commodités accessibles à pied : Supérette avec dépôt de pain Maison médicale, médiathèque, Poste, Mairie Marché hebdomadaire Ligne 2 de bus à proximité immédiate, reliant le Pont Paron et le centre de Chalon-sur-Saône Une résidence neuve aux dernières normes RE 2020 Composée de 20 appartements du T2 au T4, Les Jardins d'Elsa allient modernité, performance énergétique et qualité de vie. Les logements sont livrés clé en main, toutes finitions sols, murs, plafonds. Une pièce en plus à l'extérieur Tous les appartements bénéficient d'un espace extérieur privatif avec éclairage et prise électrique : Grande terrasse, balcon ou jardin (avec point d'eau) selon les lots Un vrai prolongement de votre espace de vie ! Confort et équipements modernes Chauffage individuel performant et connecté Volets roulants motorisés dans la pièce de vie Douche grand format (90x120 cm ? bac extraplat encastré ou douche à l'italienne selon plan) Ascenseur Garage motorisé et parking (inclus dans le prix) Vidéophone couleur et digicode Local à vélos sécurisé Accès et circulations conformes aux normes PMR Les avantages du neuf Excellente isolation thermique et phonique Faibles consommations énergétiques Frais de notaire réduits Exonération de taxe foncière pendant 2 ans Garantie décennale et de bon fonctionnement Disponibilités : T3-002 à 201.000 euros TTC, 1 garage et 1 parking compris. T3-004 à 212.500 euros TTC, 1 garage et 1 parking compris. T4-203 : sous compromis Parking supplémentaire possible en sus. Contactez-nous dès maintenant pour recevoir la documentation complète et échanger sur votre projet. Retrouvez toutes les informations et les plans de vente sur notre site internet : coop habitat bourgogne Copropriété de 62 lots - dont 20 lots habitation. (). Charges annuelles : 1 euros.
- Type de bien : Appartement
- Surface : 68 m²
- Localisation : France - Bourgogne-Franche-Comté - Saône-et-Loire
- Ville : SAINT-REMY
- Code postal : 71100
- Annonce créée le 24/03/2026









