Vente Appartement 83700, SAINT-RAPHAEL france 411 600 €
Descriptif du bien
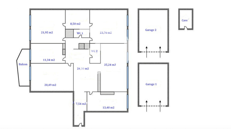
Idéalement situé en centre-ville de saint Raphaël, proche de la gare TGV et des commerces, plateau d'une superficie de 161m2, il offre la possibilité d'activités professionnels libérales ( juridiques, médicales paramédicales, courtier en assurance, architecte, etc.) mais la destination peut être modifiée pour devenir un spacieux appartement avec 3 chambres. il est actuellement composé d'une entrée, un espace pour l'accueil et secrétariat, 2 salles d'attente, 4 salles de consultations ou bureaux, 2 WC, un espace dédié aux archives. Pour compléter ce bien, 2 garages fermés en sous-sol et une cave. Bien en copropriété, 159 lots dont 58 lots d'habitation. Charges annuelles : 2400 euros DPE = D GES =B A visiter sans tarder, contacter Barbara MEJEAN au 06 07 97 84 69 Les informations sur les risques auxquels ce bien est exposé sont disponibles sur le site Géorisques : www.georisques.gouv.fr Copropriété de 158 lots - dont 58 lots habitation. (Pas de procédure en cours). Charges annuelles : 2400 euros.
- Type de bien : Appartement
- DPE : D - 151 à 230 kWh/².an
- GES : B - 6 à 10 kg eq CO2/².an
- Surface : 161 m²
- Localisation : France - provence-alpes-cote-d-azur - Var
- Ville : SAINT-RAPHAEL
- Code postal : 83700
- Annonce créée le 09/12/2025









