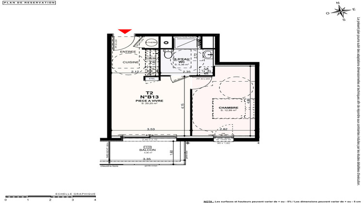
Vente Appartement 29250, SAINT-POL-DE-LEON france 169 000 €
1 / 4
Descriptif du bien
Venez découvrir votre futur lieu de vie ou de villégiature. Situé à moins d'1 km du centre ville de SAINT POL DE LEON, cette nouvelle résidence vous offrira des logements orientés plein sud allant du T2 au T4. Les prestations de qualité vous assureront un confort quotidien et optimiseront la performance énergétique. Contactez nous dès aujourd'hui au 02.96.43.24.25 afin de construire ensemble votre projet immobilier.



