Vente Appartement 74800, Saint-Pierre-en-Faucigny france 222 000 €
Descriptif du bien
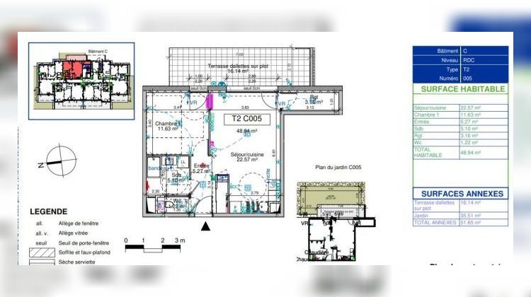
Au rez de chaussée appartement T2 de 48,59m² avec petit jardin privatif, terrasse, comprenant hall d'entrée,
séjour/cuisine ,1 chambre, salle de bains wc, place de parking, box.
Commerces et services à proximité
Environnement naturel préservé
Accès rapide à l'A40
A 40 minutes de Genève en voiture
Stade et complexe sportif
Armand Bouvard, à 2 min à pied.
Collège Saint Pierre.
Gare Saint-Pierre
Ecole Primaire Toisinges.
Honoraires à la charge du vendeur. Dans une copropriété. Aucune procédure n'est en cours. DPE vierge Nos honoraires : https://files.netty.immo/file/sellingimmo/honoraires Les informations sur les risques auxquels ce bien est exposé sont disponibles sur le site Géorisques : georisques.gouv.fr
- Type de bien : Appartement
- Surface : 49 m²
- Localisation : France - Auvergne-Rhône-Alpes - Savoie (Haute)
- Ville : Saint-Pierre-en-Faucigny
- Code postal : 74800
- Disponible le 08/05/2021
- Annonce créée le 12/12/2023


