Vente Appartement 38760, SAINT PAUL DE VARCES france 325 000 €
Descriptif du bien
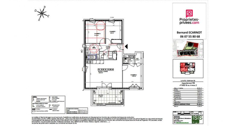
Plongée dans un écrin de verdure, St-Paul-de-Varces se situe en amont de la vallée du Lavanchon et fait partie intégrante du parc naturel régional du Vercors. Bénéficiant d'un emplacement clé au coeur du village, vous pourrez rejoindre les premiers commerces, déposer les enfants à l'école ou à la crèche, profiter des activités au sein de la salle Polyvalente, pratiquer la randonnée et les balades en forêt en sortant de chez vous. A PIED : Arrêt de bus L46 à 5 min, Café-Restaurant à 5 min, École maternelle, élémentaire et crèche à 5 min, Gymnase tennis à 10 min. EN VOITURE : Stade à 5 min, Supermarché à 10 min, Grenoble à 20 min (sortie directe A51). Vue exceptionnelle sur les massifs du Vercors jardin partagé Appartements T4 disponibles de 80 m² à 87m² à partir de 343000 euros avec garage en sous-sol. Norme RT 2012 -10 % - Prestations haut de gamme - livraison 4ème trimestre 2025 Pour choisir et vous accompagner dans votre projet, contactez Bernard ECARNOT, au 06 07 55 80 68 ou par courriel à b.ecarnot@proprietes-privees.com Selon l'article L.561.5 du Code Monétaire et Financier, pour l'organisation de la visite, la présentation d'une pièce d'identité vous sera demandée. Cette vente est garantie 12 mois. Cette présente annonce a été rédigée sous la responsabilité éditoriale de Bernard ECARNOT agissant sous le statut d'agent commercial immatriculé au RSAC 383370558 auprès de la SAS PROPRIETES PRIVEES, au capital de 40 000 euros, ZAC LE CHÊNE FERRÉ - 44 ALLÉE DES CINQ CONTINENTS 44120 VERTOU; SIRET 487 624 777 00040, RCS Nantes. Carte professionnelle Transactions sur immeubles et fonds de commerce (T) et Gestion immobilière (G) n° CPI 4401 2016 000 010 388 délivrée par la CCI Nantes - Saint Nazaire. Compte séquestre n°30932508467 BPA SAINT-SEBASTIEN-SUR-LOIRE (44230). Garantie GALIAN-SMABTP - 89 rue de la Boétie, 75008 Paris - n°28137 J pour 2 000 000 euros pour T et 120 000 euros pour G. Assurance responsabilité civile professionnelle par GALIAN-SMABTP Entreprise n° de police RCP_01_28137J. " Mandat réf : 422845TRIBCN.Le professionnel garantit et sécurise votre projet immobilier Copropriété de 98 lots - dont 52 lots habitation. (). Charges annuelles : 1000 euros. Bernard ECARNOT (EI) Agent Commercial - Numéro RSAC : 383370558 - .
- Type de bien : Appartement
- Surface : 81 m²
- Localisation : France - Auvergne-Rhône-Alpes - Isère
- Ville : SAINT PAUL DE VARCES
- Code postal : 38760
- Annonce créée le 04/10/2025



