Vente Appartement 44600, Saint-Nazaire france 579 000 €
Descriptif du bien
Votre conseiller Noovimo Joachim BOISIAUD 06.71.48.81.76.
jboisiaud@noovimo.fr
Vous propose cet appartement livrable 1er trimestre 2024.
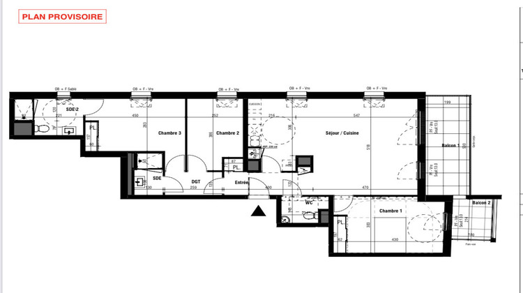
Un appartement de 91,44 m2 avec un balcon tourné vers la mer de 14,4 m2.
Idéalement placé entre le centre ville et le remblai .
Proche de toutes commodités (écoles,commerces et transports,plage).
Situé au 4ème étage .
Appartement comprenant:
Une entrée de 5,5 m2 avec un placard.
Un salon séjour/cuisine de 34,31 m2 donnant sur un balcon exposé sud:est.
Une salle d'eau de 5,42 m2.
Une chambre de 14,71 m2 donnant sur un balcon exposé sud/est.
Une chambre de 13,65 m2.
Une chambre de 9,08 m2.
Un wc.
Une salle d'eau de 2,81 m2 .
Un dégagement de 3,23 m2.
'les informations sur les risques auxquels ce bien est exposé sont disponibles sur le site Géorisques:
http://www.georisques.gouv.fr' .
Prix du bien 579 000 euros.
Votre agent indépendant Noovimo inscrit au RSAC de Saint-Nazaire No793 556 051. - Annonce rédigée et publiée par un Agent Mandataire -
- Type de bien : Appartement
- Surface : 91 m²
- Localisation : France - pays-de-la-loire - Loire Atlantique
- Ville : Saint-Nazaire
- Code postal : 44600
- Annonce créée le 05/02/2025




