Vente Appartement 33160, Saint-Médard-en-Jalles france 196 000 €
Descriptif du bien
SUPERBE T2 FONCTIONNEL AVEC BELLE TERRASSE / PARKING EN COEUR DE VILLE
C'est au coeur de son centre-ville dans une résidence à taille humaine, à deux pas de l'église, que se niche la résidence et son îlot arboré, une situation idéale à proximité immédiate des commerces, des écoles, des services de santé et des équipements culturels.
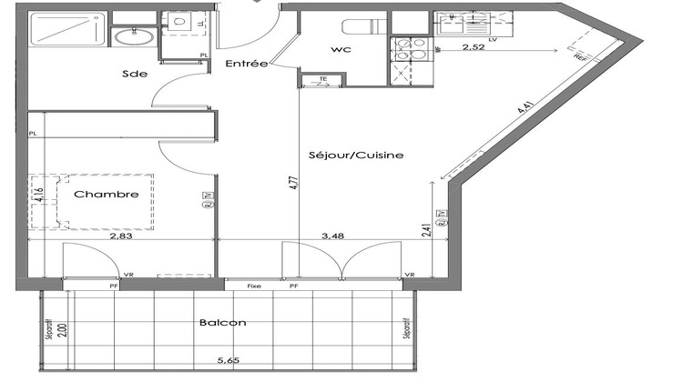
Il offre une surface habitable totale de 48 m² comprenant une entrée de 5 m² qui s'ouvre sur une pièce de vie réunissant le séjour et la cuisine de 24 m². L'espace nuit se compose d'une belle chambre de 12 m². Pour optimiser le rangement, le logement bénéficie de placards intégrés situés judicieusement dans l'entrée et dans la chambre. Pour compléter cet aménagement, le logement dispose d'une salle d'eau de 6 m² et de WC séparés de 3 m². Enfin, une terrasse de 12 m² vient prolonger agréablement ce bien vers l'extérieur.
Un bien rare, alliant lumière, calme et confort, dans un emplacement recherché à deux pas des commerces, des services et des transports vers Bordeaux.
Deux places de parkings (en sus obligatoire 25 000) complètent ce bien.
- Aucun travaux à prévoir
- Frais de Notaires Réduits
- Garanties
- RT 2012
- ...
Visuel non contractuel - suggestion d'aménagement
SUPERBE T2 FONCTIONNEL AVEC BELLE TERRASSE / PARKING EN COEUR DE VILLE
Honoraires à la charge du vendeur. Dans une copropriété de 15 lots. Aucune procédure n'est en cours. DPE en cours. Les informations sur les risques auxquels ce bien est exposé sont disponibles sur le site Géorisques : georisques.gouv.fr.
Votre conseiller RH Patrimoine : Maxime HERVE
Agent commercial (Entreprise individuelle)
RSAC 133095555 J
RCP 13309666 J
- Type de bien : Appartement
- Surface : 47 m²
- Localisation : France - Nouvelle-Aquitaine - Gironde
- Ville : Saint-Médard-en-Jalles
- Code postal : 33160
- Annonce créée le 27/03/2026





