Vente Appartement 83470, Saint-Maximin-la-Sainte-Baume france 65 000 €
Descriptif du bien
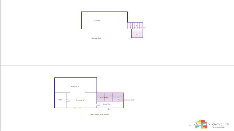
En exclusivité : situé au coeur de Saint-Maximin-la -Sainte-Baume, Maison de ville au coeur du village sur 3 niveaux avec grenier et sous sol.
Au rez de chaussée : une entrée desservant deux pièces, Une pièce d'eau.
Au premier : un palier et deux pièces.
Au 2e niveau : un palier et deux pièces.
Au 3ème : un grenier.
Au Rdc entrée avec accès au sous sol (cave)
Bien nécessitant des travaux importants destiné à un public averti (particuliers disposant d'une enveloppe travaux avec projet de rénovations, investisseurs, marchands de biens, ou professionnel du bâtiment).
Arrêté de péril (facture et devis réalisés par un bureau d'étude et artisan pour réalisation des travaux en sous sol concernant le péril)
Pour plus de renseignements ou visite n'hésitez pas à me contacter.
Honoraires inclus de 8.33% TTC à la charge de l'acquéreur. Prix hors honoraires 60 000 . DPE vierge. Les informations sur les risques auxquels ce bien est exposé sont disponibles sur le site Géorisques : georisques.gouv.fr.
Votre conseiller L'Art 2 vendre Immobilier : Karine HENRIQUES
Agent commercial (Entreprise individuelle)
RSAC 832358147 - DRAGUIGNAN
RCP 61623717 Allianz IARD
- Type de bien : Appartement
- Surface : 80 m²
- Localisation : France - provence-alpes-cote-d-azur - Var
- Ville : Saint-Maximin-la-Sainte-Baume
- Code postal : 83470
- Annonce créée le 13/03/2026


