Vente Appartement 77670, Saint-Mammès france 113 000 €
Descriptif du bien
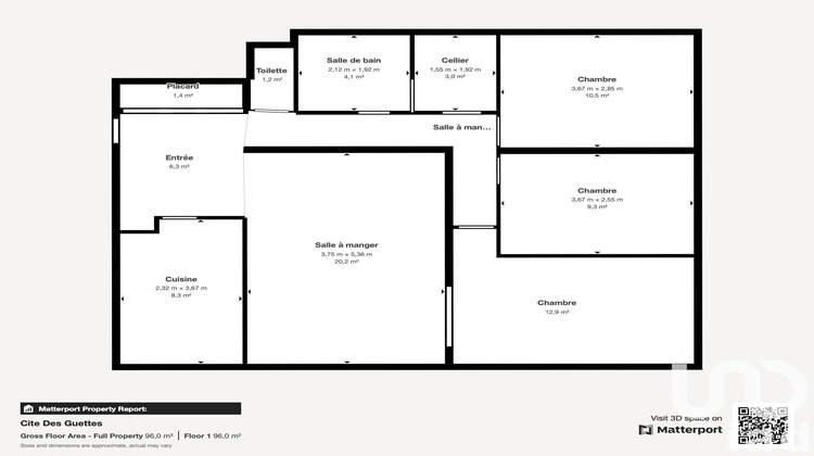
Iad France - Frédéric Jarry vous propose : Appartement 4 pièces A RÉNOVER ENTIEREMENT avec CAVE.
Une isolation extérieur vient d'être voté. Le bien est situé au dernier étage avec vue dégagée.
Lien visite virtuelle dans le lien ci-dessus. Electricité conforme. Résidence calme et sécurisée. Dispo 7 / 7.
La presente annonce immobiliere vise 2 lots situés dans une copropriété de 112 lots au total et ne faisant l'objet d'aucune procédure en cours citée à l'article L. 721-1 du code de la construction et de l'habitation. Montant moyen mensuel de charges déclaré par le vendeur : 121¤ par mois (soit 1452 ¤ annuel). Honoraires d'agence à la charge du vendeur.
Information d'affichage énergétique sur ce bien : classe ENERGIE F indice 363 et classe CLIMAT C indice 12. Les informations sur les risques auxquels ce bien est exposé, y compris l'obligation légale de débroussaillement, sont disponibles sur le site Géorisques : http://www.georisques.gouv.fr.
La présente annonce immobilière a été rédigée sous la responsabilité éditoriale de M Frédéric Jarry mandataire indépendant en immobilier (sans détention de fonds), agent commercial de la SAS I@D France immatriculé au RSAC de MELUN sous le numéro 751 854 746, titulaire de la carte de démarchage immobilier pour le compte de la société I@D France SAS.
Informations LOI ALUR :
Soumis au régime de copropriété.
Nombre de lots : 112.
Quote part annuelle(moyenne) : 1452 euros.
Honoraires charge vendeur. (gedeon_6727_31641819)
- Type de bien : Appartement
- DPE : F - 331 à 450 kWh/².an
- GES : C - 11 à 20 kg eq CO2/².an
- Surface : 81 m²
- Localisation : France - ile-de-france - Seine et Marne
- Ville : Saint-Mammès
- Code postal : 77670
- Annonce mise à jour le 26/02/2026





