Vente Appartement 35400, Saint-Malo france 307 000 €
Descriptif du bien
Iad France - Sarah Rozière (06 99 86 19 42) vous propose : Appartement T3 avec balcon à Saint-Malo.
Située rue des Antilles, au cOEur d'un environnement vivant et parfaitement connecté, la résidence contemporaine Éméralia conjugue élégance architecturale et confort de vie. À proximité immédiate de l'hippodrome, des commerces, des transports, des écoles et des plages de la Côte d'Émeraude, cette adresse offre un cadre agréable à seulement quelques minutes d'Intra-Muros. Disponible 2027.
Un appartement raffiné :
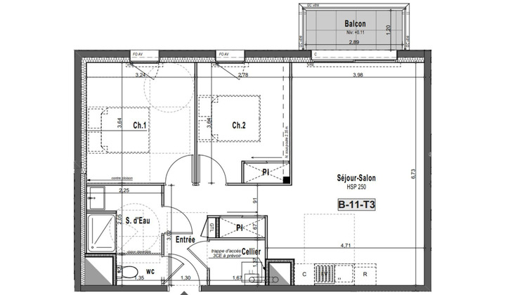
Situé au 1 er étage, cet appartement T3 de 65 m² environ habitables se prolonge par un balcon de 3 m² environ.
- Séjour / cuisine de 28 m² environ.
- Deux chambres confortables.
- Salle d'eau moderne.
- Annexes incluses : un parking privatif
De belles prestations :
- Menuiseries aluminium / PVC bicolores avec vitrage isolant thermique et acoustique.
- Chauffage et eau chaude par chaudière individuelle gaz à condensation.
- Résidence sécurisée avec visiophone, contrôle d'accès Vigik et ascenseur.
- Parkings couverts, locaux vélos et aménagements paysagers soignés.
L'art de vivre à Saint-Malo :
- À proximité immédiate du quartier de l'Hippodrome.
- À 10 minutes à vélo des plages et de la côte d'Émeraude.
- À 15 minutes à pied de la gare SNCF.
- Commerces, restaurants, marché, écoles et parcs accessibles en quelques minutes.
N'hésitez pas à me contacter pour plus d'informations ou pour un accompagnement sur mesure.
Honoraires d'agence à la charge du vendeur. Bien non soumis au DPE. Les informations sur les risques auxquels ce bien est exposé sont disponibles sur le site Géorisques : www.georisques.gouv.fr. La présente annonce immobilière a été rédigée sous la responsabilité éditoriale de Mlle Sarah Rozière EI (ID 83696), mandataire indépendant en immobilier (sans détention de fonds), agent commercial de la SAS I@D France immatriculé au RSAC de Clermont-Ferrand sous le numéro 978616993, titulaire de la carte de démarchage immobilier pour le compte de la société I@D France SAS.
Retrouvez tous nos biens sur notre site internet. www.iadfrance.fr.Informations LOI ALUR : Honoraires charge vendeur. (gedeon_6727_32191194)
- Type de bien : Appartement
- Surface : 65 m²
- Localisation : France - Bretagne - Ile et Vilaine
- Ville : Saint-Malo
- Code postal : 35400
- Annonce créée le 16/04/2026




