Vente Appartement 35400, SAINT-MALO france 412 000 €
Descriptif du bien
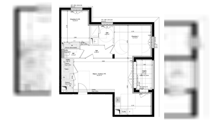
Saint Malo - Appartement 3 pièces 66.08m²- loggia de 4.82m² - 2ème étage - ascenseur - stationnements en sous-sol sécurisés Proche des plages, des commodités et des commerces, dans un quartier résidentiel au calme, au sein d' une résidence de standing aux dernières normes RT2020, alliant confort moderne et performance énergétique, au deuxième étage avec ascenseur, cet appartement de 3 pièces de 66.08 m² se compose d'un séjour salon avec cuisine ouverte donnant accès à une loggia de 4.82m², d'un cellier, placard, deux chambres, une salle d'eau, WC indépendant. Deux stationnements en sous-sol sécurisés complètent ce bien. Prestations de qualité : Performances énergétiques RT2020 - Accès sécurisé par badge et visiophone.. Prix promoteur - frais de notaire réduits. Les informations sur les risques auxquels ce bien est exposé sont disponibles sur le site Géorisques : www.georisques.gouv.fr. Copropriété de 57 lots - dont 17 lots habitation. (Pas de procédure en cours). Charges annuelles : 950 euros.
- Type de bien : Appartement
- Surface : 66 m²
- Localisation : France - Bretagne - Ile et Vilaine
- Ville : SAINT-MALO
- Code postal : 35400
- Annonce créée le 17/02/2026


