Vente Appartement 35400, SAINT-MALO france 538 000 €
Descriptif du bien
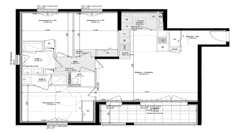
Saint Malo - Appartement 4 pièces 82.35m² Sud- loggia de 8.74m² - 2ème étage - ascenseur -Garage et stationnement A 900 mètres de la plage de Rochebonne, des commodités, commerces, .. dans un quartier résidentiel au calme, cet appartement se trouve au sein d'une résidence de standing conforme aux normes RT2020, alliant confort moderne et performance énergétique. Situé au deuxième étage avec ascenseur, cet appartement de 4 pièces, exposé au Sud développe une surface de 82.35 m². Il se compose d'une entrée avec placard, d'un vaste séjour salon avec cuisine ouverte donnant accès à une loggia de 8.74m², d'une buanderie/cellier, trois chambres, deux salles d'eau, WC indépendant. Un garage et un stationnement en sous-sol sécurisés complètent ce bien. Prestations de qualité : Performances énergétiques RT2020 - Accès sécurisé par badge et visiophone.. Choisir Saint-Malo, c'est opter pour une destination authentique, où il fait bon vivre, travailler et investir durablement. Prix promoteur - frais de notaire réduits. Les informations sur les risques auxquels ce bien est exposé sont disponibles sur le site Géorisques : www.georisques.gouv.fr. Copropriété de 57 lots - dont 17 lots habitation. (Pas de procédure en cours). Charges annuelles : 1180 euros.
- Type de bien : Appartement
- Surface : 82 m²
- Localisation : France - Bretagne - Ile et Vilaine
- Ville : SAINT-MALO
- Code postal : 35400
- Annonce créée le 10/02/2026


