Vente Appartement 35400, Saint-Malo france 500 000 €
Descriptif du bien
L'agence 'MON BIEN A LA MER', spécialiste de l'immobilier neuf sur les côtes Bretonnes, vous présente :
Résidence neuve en livraison.
Emplacement central : A pied : 8 min gare, 15 min plage des Bas Sablons/St Servan, 18 min Sillon, 16 min Marché de Rocabey, 5 min Centre Hospitalier.
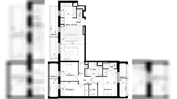
T4 traversant de 86m2 traversant avec triple terrasse (11,44-8,15-6,35m2) comprenant :
- Séjour 31,85m2
- Une suite parentale 13,63m2 avec salle d'eau attenante et terrasse
- Deux autres chambres 10,76-9,5m2
- Salle de bains avec wc, 2è wc séparés
- Placards et dégagement
- Double parking sous sol inclus
Nous Consulter
Honoraires à la charge du vendeur. Classe énergie B, Classe climat B Montant estimé des dépenses annuelles d'énergie pour un usage standard : entre 630.00 et 940.00 sur les années 2021, 2022 et 2023 (abonnements compris). Les informations sur les risques auxquels ce bien est exposé sont disponibles sur le site Géorisques : georisques.gouv.fr.
Votre conseiller MON BIEN A LA MER : Gérant - .fr MON BIEN A LA MER
Carte T CPI 2201 2018 000 025 040
RCP ACM IARD B1 7025278
- Type de bien : Appartement
- DPE : B - 51 à 90 kWh/².an
- GES : B - 6 à 10 kg eq CO2/².an
- Surface : 86 m²
- Localisation : France - Bretagne - Ile et Vilaine
- Ville : Saint-Malo
- Code postal : 35400
- Annonce créée le 23/01/2026




