Vente Appartement 35400, SAINT-MALO france 222 000 €
1 / 9
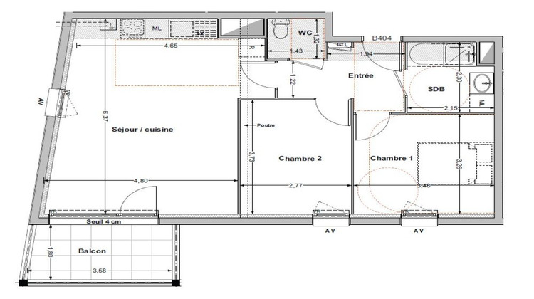
Descriptif du bien
ST MALO - Rue du Saint Laurent. A proximité de toutes les commodités. Cet appartement T3 d'une superficie d'environ 63 m² se situe au 4ème étage d'une résidence récente de 2017. Il se compose : - d'une entrée - d'un séjour avec cuisine ouverte aménagée de 30 m² - d'un balcon de 6 m² exposé Sud - de deux chambres de 11 et 10 m² - d'une salle d'eau - d'un WC indépendant Une place de parking privative complète ce bien. Chauffage individuel gaz. Charges annuelles : 982 euros. Ses atouts : Résidence récente, proche des commerces et équipements, accès rapide au centre, balcon et parking. Copropriété de 154 lots - dont 62 lots habitation. Charges annuelles : 982 euros.
- Type de bien : Appartement
- DPE : C - 91 à 150 kWh/².an
- GES : C - 11 à 20 kg eq CO2/².an
- Surface : 62 m²
- Localisation : France - Bretagne - Ile et Vilaine
- Ville : SAINT-MALO
- Code postal : 35400
- Annonce mise à jour le 10/03/2026








