Vente Appartement 45650, Saint-Jean-le-Blanc france 415 000 €
Descriptif du bien
A VENDRE,
Logement neuf dans une résidence avec 2 parkings privatif couvert.
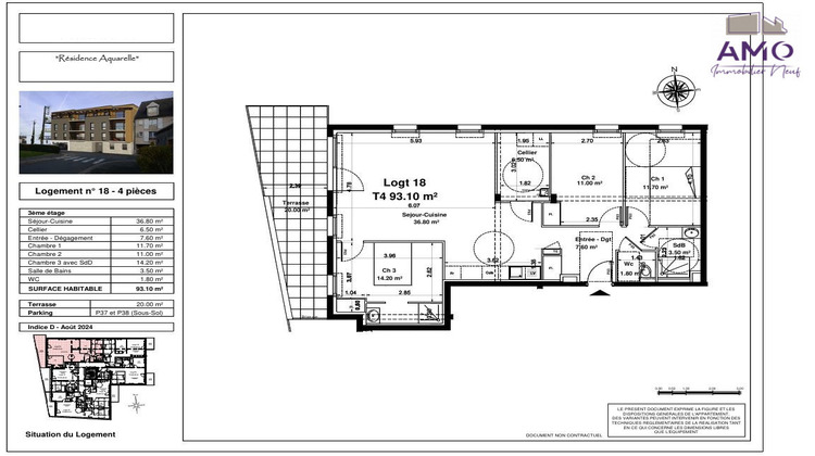
Le bien est composé d'une grande pièce de vie avec une cuisine à aménagée et équipée ouverte, trois belles chambres dont une suite parentale avec une salle d'eau, une salle de bains, une terrasse et un toilette indépendant.
C'est un logement neuf, mais déjà construit et livré, donc habitable immédiatement. Vous bénéficierais des mêmes avantages de l'achat d'un logement dans le neuf, comme les frais de notaires réduits et les garanties de construction pouvant durer jusqu'à 10 ans après l'achèvement de la résidence. Après l'achat il ne vous resteras plus qu'à poser vos meubles, vos valises et vous serais convenablement installer.
Agréablement situé, vous serez à proximité de toutes les commodités comme les commerces, les transports (Tram, Bus...), les écoles et un accès direct et rapide à la tangentielle.
Un bien à visiter absolument.
Honoraires à la charge du vendeur. Dans une copropriété de 20 lots. Aucune procédure n'est en cours. Classe énergie C, Classe climat C Montant moyen estimé des dépenses annuelles d'énergie pour un usage standard, établi à partir des prix de l'énergie de l'année 2021 : entre 539.00 et 729.00 . Les informations sur les risques auxquels ce bien est exposé sont disponibles sur le site Géorisques : georisques.gouv.fr.
- Type de bien : Appartement
- DPE : C - 91 à 150 kWh/².an
- GES : C - 11 à 20 kg eq CO2/².an
- Surface : 93 m²
- Localisation : France - centre-val-de-loire - Loiret
- Ville : Saint-Jean-le-Blanc
- Code postal : 45650
- Annonce créée le 04/10/2024

