Vente Appartement 34430, SAINT-JEAN-DE-VEDAS france 160 000 €
Descriptif du bien
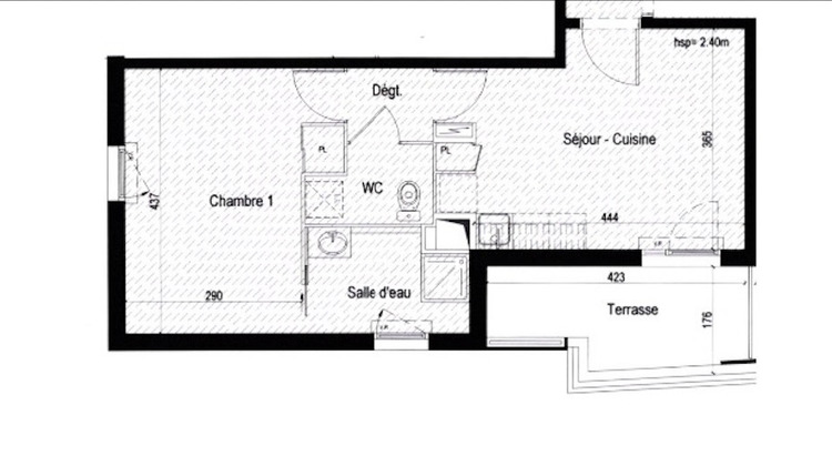
Voici une version actualisée et cohérente du texte publicitaire, prête à l'emploi : Profitez d'une excellente opportunité dans une résidence récente de 2016, située à deux pas de la Clinique Saint-Jean, dans un environnement calme et agréable. Cet appartement T2 lumineux séduit par sa belle terrasse et sa place de parking privative en sous-sol. Son excellent DPE classé B et l'absence totale de travaux à prévoir en font un bien confortable et rassurant. L'appartement est actuellement loué, ce qui permet de s'adresser aussi bien à un investisseur à la recherche d'un rendement immédiat, les locataires étant disposés à rester, qu'à un acquéreur souhaitant une occupation personnelle. Un congé pour vente a été délivré, garantissant une libération du logement au plus tard le 27 septembre 2026, avec la possibilité d'une disponibilité anticipée si les locataires quittent les lieux avant cette date. La proximité immédiate du tramway, le cadre de vie paisible et la qualité de la résidence assurent une forte attractivité, aussi bien en investissement qu'en résidence principale. Une opportunité rare dans un secteur recherché, à ne pas manquer (6.67 % honoraires TTC à la charge de l'acquéreur.) Copropriété de 117 lots - dont 56 lots habitation. (Pas de procédure en cours). Charges annuelles : 1000 euros. Pedro COSTA (EI) Agent Commercial - Numéro RSAC : - .







