Vente Appartement 01630, SAINT JEAN DE GONVILLE france 308 000 €
Descriptif du bien
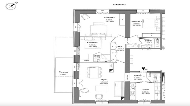
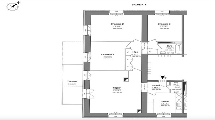
Opportunité rare: A saisir, Appartement 1er étage T4 de 114 m2 avec de beaux volumes dans copropriété de seulement 5 logements. Bâtisse des années 60, idéalement située. Cet appartement lumineux vendu en plateau vous apportera confort, qualité de vies. Des prestations sont déjà prévues comme l'isolation thermique par l'extérieur, le remplacement des menuiseries, l'alimentation électrique, l'alimentation individuelle en eau, la suppression de l'installation fioul etc..... Vous aurez la possibilité de vous projeter et choisir de créer vous-même votre espace privé. Les pièces sont là. On vous laisse le choix de réaliser vos travaux privatifs en fonction de vos souhaits ou d'être accompagner par nos artisans si vous le souhaitez. Les plus: Petite copro de 5 logements Exposition Sud-Ouest Terrasse, 2 caves Excellent emplacement à deux pas de l'arrêt de bus A proximité de l'école et commerces Parkings privatifs N'hésitez pas à me contacter pour de plus amples informations, dossier complet. Nombre de lots de la copropriété : 18, Montant moyen annuel de la quote-part de charges (budget prévisionnel) : 1005€ soit 83€ par mois. Les honoraires sont à la charge du vendeur. Les informations sur les risques auxquels ce bien est exposé sont disponibles sur le site Géorisques : www. georisques. gouv. fr. Réseau Immobilier CAPIFRANCE - Votre agent commercial (RSAC N°418 911 632 - Greffe de BOURG EN BRESSE) Corinne RESCANIERES Entrepreneur Individuel 06 24 28 54 07 - Réf.931234
- Type de bien : Appartement
- Surface : 114 m²
- Localisation : France - Auvergne-Rhône-Alpes - Ain
- Ville : SAINT JEAN DE GONVILLE
- Code postal : 01630
- Annonce créée le 22/11/2025




