Vente Appartement 35136, SAINT-JACQUES-DE-LA-LANDE france 255 000 €
Descriptif du bien
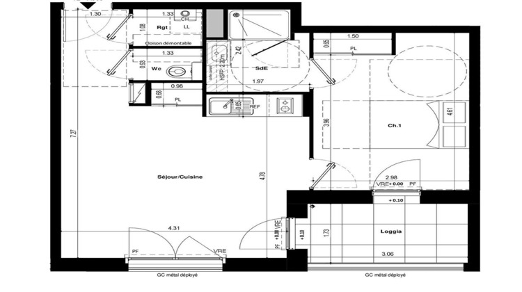
COURROUZE / ST JACQUES - A 500 mètres du métro - Appartement 2 pièces 45.59m² Ouest - 3ème etage - ascenseur - loggia - stationnement privé Idéalement située, à 500 mètres du métro et des transports, découvrez cet appartement de 2 pièces, d'une surface de 45,59 m², situé au 3ème étage avec ascenseur d'une résidence moderne répondant aux dernières normes 2020. Implanté au coeur d'un quartier dynamique, il offre un cadre de vie agréable avec un accès immédiat aux commerces, écoles, services et infrastructures. Sa situation stratégique garantit une mobilité optimale grâce à la proximité de la ligne B du métro, des lignes de bus et des pistes cyclables. Baigné de lumière grâce à son exposition plein Ouest, cet appartement se compose d'une entrée avec placard, d'un séjour avec cuisine ouverte donnant sur une loggia de 5,30 m², d'une chambre avec placard et salle d'eau privative, ainsi que d'un cellier/buanderie et d'un WC indépendant. Stationnement en sous-sol sécurisé. Ne manquez pas cette opportunité idéale pour un investissement ou une première acquisition, alliant confort, modernité et praticité. Contactez-nous dès aujourd'hui pour plus d'informations ! Prix promoteur - Frais de notaire réduits Les informations relatives aux risques auxquels ce bien est exposé sont disponibles sur le site Géorisques : www.georisques.gouv.fr. Photos non contractuelles, suggestions d'aménagements Copropriété de 24 lots (Pas de procédure en cours). Charges annuelles : 648 euros.
- Type de bien : Appartement
- Surface : 45 m²
- Localisation : France - Bretagne - Ile et Vilaine
- Ville : SAINT-JACQUES-DE-LA-LANDE
- Code postal : 35136
- Annonce créée le 25/02/2025


