Vente Appartement 35136, SAINT-JACQUES-DE-LA-LANDE france 299 000 €
Descriptif du bien
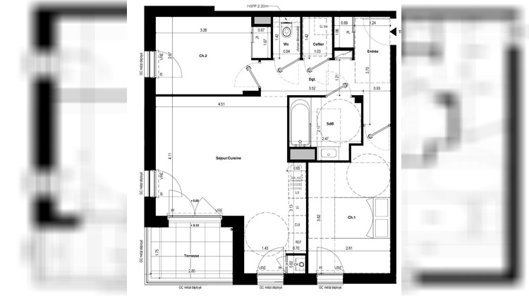
COURROUZE / ST JACQUES - A 500 m du métro - 3 pièces 61.93m² Ouest- 1er étage - ascenseur - terrasse de 4.90m² - stationnement privatif A seulement 500 mètres de la station de métro ligne B - La Courrouze, à proximité immédiate des écoles, commerces et infrastructures, laissez-vous séduire par cet appartement de 3 pièces, d'une superficie de 61.93m². Niché au 1er étage d'une résidence contemporaine répondant aux normes RT2020 et équipée d'un ascenseur, ce bien bénéficie d'une luminosité grâce à son exposition plein Ouest. Vous y découvrirez une entrée avec placard, dégagement, un séjour-salon avec cuisine ouverte avec accès à une terrasse de 4.90m². L'espace nuit se compose de deux chambres, d'une salle de bains et d'un WC indépendant. Cellier. Stationnement en sous-sol sécurisé. Contactez-nous dès aujourd'hui pour en savoir plus ! Prix promoteur - Frais de notaire réduits. Les informations sur les risques auxquels ce bien est exposé sont disponibles sur le site Géorisques : www.georisques.gouv.fr. Photos non contractuelles - Suggestions d'aménagements. Copropriété de 24 lots (Pas de procédure en cours). Charges annuelles : 878 euros.
- Type de bien : Appartement
- Surface : 61 m²
- Localisation : France - Bretagne - Ile et Vilaine
- Ville : SAINT-JACQUES-DE-LA-LANDE
- Code postal : 35136
- Annonce créée le 25/02/2025


