Vente Appartement 85270, SAINT-HILAIRE-DE-RIEZ france 318 000 €
Descriptif du bien
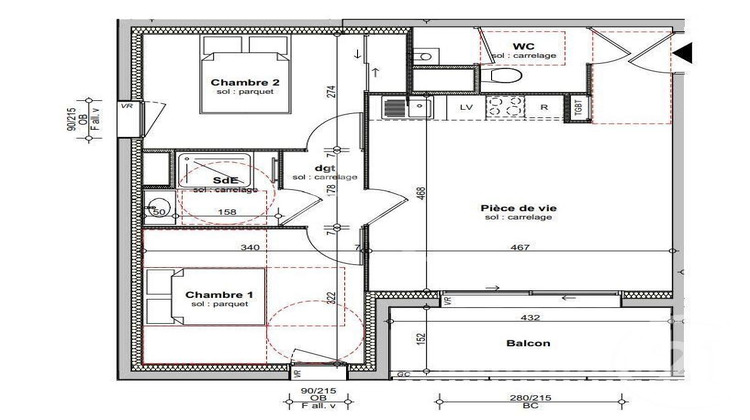
L'agence l'ADRESSE SAINT GILLES CROIX DE VIE vous propose sur le secteur de la Pelle à Porteau, à proximité immédiate de Saint Gilles Croix de Vie et de l'océan, cette nouvelle résidence neuve . Voici un très bel appartement de standing de 53.70 m² avec Balcon + Cave + Parking + Garage Cette résidence de qualité, se situe dans un environnement calme, résidentiel, à 800 m de la plage, et à 600 m des commerces, L'appartement est composé d'une entrée , une pièce de vie et un wc. Le coin nuit vous offre deux chambres et une salle d'eau (douche) . La pièce de vie lumineuse est exposée Sud vous permettant de profiter d un généreux ensoleillement . Vente en Etat de Futur Achèvement / Frais de Notaire réduits Le plus : la résidence est sécurisée . information et contact, agence l'ADRESSE SAINT GILLES CROIX DE VIE 02 51 54 10 51. Etat des risques et pollutions Les informations sur les risques auxquels ce bien est exposé sont disponibles sur le site Géorisques : >www.georisques.gouv.fr Risque de pollution : Oui Date ERP : 06/03/2023
- Type de bien : Appartement
- Surface : 53 m²
- Localisation : France - pays-de-la-loire - Vendée
- Ville : SAINT-HILAIRE-DE-RIEZ
- Code postal : 85270
- Annonce créée le 31/03/2026



