Vente Appartement 85270, Saint-Hilaire-de-Riez france 177 000 €
Descriptif du bien
Iad France - Emilie Milcent (06 14 01 59 18) vous propose : * DERNIERES OPPORTUNITES * A seulement quelques minutes des commodités et de la plage, dans un cadre bucolique, cet appartement est situé au rez de chaussée d'une résidence en cours de construction.
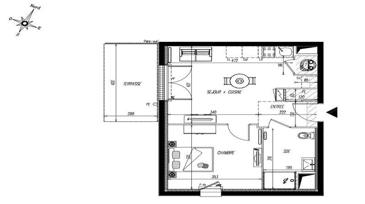
Il se compose d'une pièce de vie avec cuisine, une chambre, une salle d'eau avec WC et dispose d'une terrasse et d'une place de parking nominative.
Première acquisition, investissement locatif ou secondaire ce bien vous offre divers possibilités. Eligible PTZ et LMNP avec pack meublé.
Honoraires d'agence à la charge du vendeur. Bien non soumis au DPE. Les informations sur les risques auxquels ce bien est exposé sont disponibles sur le site Géorisques : www.georisques.gouv.fr. La présente annonce immobilière a été rédigée sous la responsabilité éditoriale de Mme Emilie Milcent EI (ID 79559), mandataire indépendant en immobilier (sans détention de fonds), agent commercial de la SAS I@D France immatriculé au RSAC de LA ROCHE SUR YON sous le numéro 909731820, titulaire de la carte de démarchage immobilier pour le compte de la société I@D France SAS.
Retrouvez tous nos biens sur notre site internet. www.iadfrance.fr.
Informations LOI ALUR :
Honoraires charge vendeur. (gedeon_6727_31084526)
- Type de bien : Appartement
- Surface : 39 m²
- Localisation : France - pays-de-la-loire - Vendée
- Ville : Saint-Hilaire-de-Riez
- Code postal : 85270
- Annonce mise à jour le 11/12/2025





