Vente Appartement 01630, SAINT-GENIS-POUILLY france 529 900 €
Descriptif du bien
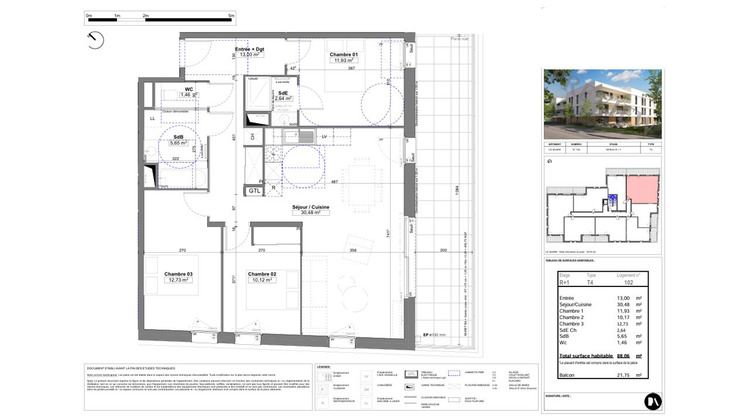
OFFRE DU MOMENT : FRAIS DE NOTAIRES OFFERTS !! A vendre à Saint-Genis-Pouilly, au sein d'une résidence neuve à taille humaine de 19 logements, idéalement située, découvrez ce spacieux appartement T4 au 1er étage, offrant une surface habitable de 88,23 m². L'appartement se compose d'une entrée, d'une grande pièce de vie lumineuse de 30,48 m² ouvrant sur un magnifique balcon de 21,75 m², idéal pour profiter des beaux jours. L'espace nuit comprend une suite parentale avec sa salle d'eau privative et une porte fenêtre donnant accès sur le balcon ; deux autres chambres dont une avec placard; une salle de bains et un WC séparé. Possibilité de stationnement en supplément. Situation idéale pour les frontaliers : à quelques minutes de la frontière suisse, du CERN et de Genève, tout en bénéficiant d'un environnement calme et verdoyant. Copropriété de 77 lots - dont 19 lots habitation.().
- Type de bien : Appartement
- Surface : 88 m²
- Localisation : France - Auvergne-Rhône-Alpes - Ain
- Ville : SAINT-GENIS-POUILLY
- Code postal : 01630
- Annonce mise à jour le 03/03/2026


