Vente Appartement 35230, SAINT-ERBLON france 181 000 €
Descriptif du bien
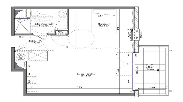
Saint Erblon - appartement 2 pièces 41.49m² - 1er étage - balcon 6.10m² - ascenseur - stationnement. Idéalement situé, dans une résidence d'architecture contemporaine, aux dernières normes RE2020, au sein d'un environnement calme et verdoyant, proche des commodités, des transports ... appartement 2 pièces de 41.49m², au 1er étage avec ascenseur, comprenant : une entrée avec placard, un séjour salon avec cuisine donnant accès à un balcon de 6.10m², une chambre, salle d'eau avec wc. Stationnement extérieur. Prix promoteur - frais de notaire réduits - Les informations sur les risques auxquels ce bien est exposé sont disponibles sur le site Géorisques : www.georisques.gouv.fr Copropriété de 19 lots (Pas de procédure en cours). Charges annuelles : 619 euros.
- Type de bien : Appartement
- Surface : 41 m²
- Localisation : France - Bretagne - Ile et Vilaine
- Ville : SAINT-ERBLON
- Code postal : 35230
- Annonce créée le 12/11/2024


