Vente Appartement 35230, SAINT-ERBLON france 265 000 €
Descriptif du bien
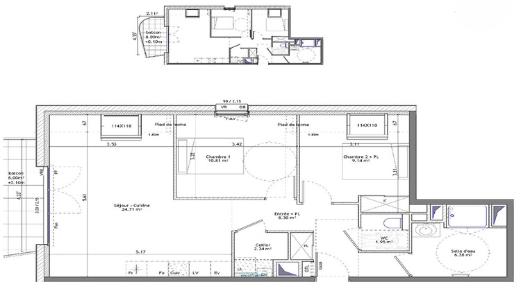
Saint Erblon - appartement 3 pièces 63.63m² Sud Ouest - 2ème étage - balcon 8m² - ascenseur - garage Idéalement situé, dans une résidence aux dernières normes RE2020 au sein d'un environnement paisible et verdoyant, à proximité des commodités : commerces locaux, des supermarchés, des écoles, des crèches, et des équipements sportifs, des transports en commun ... appartement 3 pièces de 63.63m² exposé Sud-Ouest, au deuxième étage avec ascenseur, surface au sol : 67.89m² - comprenant : une entrée avec placard, un séjour salon avec cuisine donnant accès à un balcon de 8 m², deux chambres, salle d'eau, wc indépendant, cellier. Garage en sous-sol sécurisé. Photos non contractuelles - Suggestions d'aménagements Prix promoteur - frais de notaire réduits - Les informations sur les risques auxquels ce bien est exposé sont disponibles sur le site Géorisques : www.georisques.gouv.fr Copropriété de 19 lots - dont 19 lots habitation. (Pas de procédure en cours). Charges annuelles : 902 euros.
- Type de bien : Appartement
- Surface : 63 m²
- Localisation : France - Bretagne - Ile et Vilaine
- Ville : SAINT-ERBLON
- Code postal : 35230
- Annonce mise à jour le 20/01/2026


