Vente Appartement 69370, SAINT-DIDIER-AU-MONT-D'OR france 888 000 €
Descriptif du bien
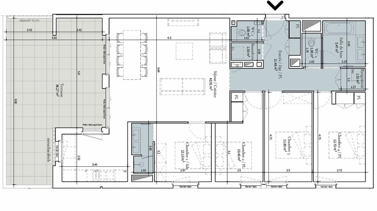
A Saint DIDIER au Mont D'OR, je vous propose de visiter cet appartement de 114,52m² avec Terrasse comme dans une maison dans une résidence de standing aux dernières normes comprenant : Une entrée, un wc séparé, un dressing, un séjour avec cuisine ouverte de 44m² avec cellier, donnant sur la terrasse de 36,27m². Dans le coin nuit, trois chambres, une salle de bain, une suite parentale avec salle d'eau, une buanderie et un WC séparé. Résidence contemporaine aux très belles prestations intérieures Bâtiment basse consommation, faibles charges Visuel non contractuel Pour tout renseignement, vous pouvez me contacter, Je serai ravi d'échanger et vous aider à concrétiser votre beau projet Merci de contacter votre conseiller Grégory pour plus d'informations Copropriété de 50 lots - dont 50 lots habitation. (Pas de procédure en cours). Charges annuelles : 1800 euros.
- Type de bien : Appartement
- DPE : B - 51 à 90 kWh/².an
- GES : B - 6 à 10 kg eq CO2/².an
- Surface : 115 m²
- Localisation : France - Auvergne-Rhône-Alpes - Rhône
- Ville : SAINT-DIDIER-AU-MONT-D'OR
- Code postal : 69370
- Annonce créée le 17/02/2026




