Vente Appartement 44250, Saint-Brevin-les-Pins france 340 000 €
Descriptif du bien
Iad France - Sandra Dujardin (06 32 15 13 70) vous propose : OPPORTUNITÉ -T3 - Résidence 'COTTAGE OCEAN' à SAINT-BREVIN-LES-PINS, à 20 mns de SAINT-NAZAIRE
Résidence «COTTAGE OCEAN», une architecture balnéaire majestueuse à seulement 150 mètres de la plage de sable fin.
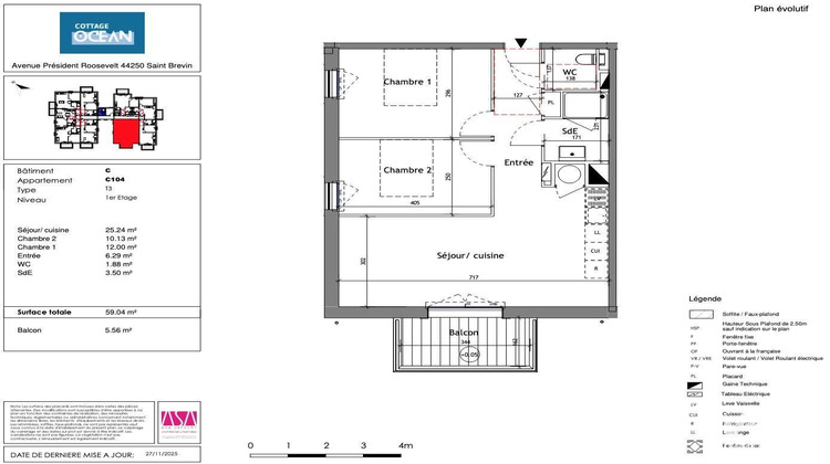
- 3 pièces de 59 m² environ, R + 1,. 2 chambres,. Balcon 6 m² environ,. parking au sous-sol,. frais de notaire estimés à 8500 euros en moyenne.
Vous l'avez rêvé, ne manquez pas de concrétiser votre projet, profitez de cette opportunité à SAINT-BREVIN-LES-PINS où se conjuguent douceur de vie et territoire attractif.
La résidence «COTTAGE OCEAN», logements à l'accession libre, lumineux et confortables, dans un cadre idéal où tout est pensé pour que vous puissiez jouir de logements aux nombreux avantages.
Règlementation Environnementale RE 2020.
Contactez-moi pour en savoir plus et réserver !
Honoraires d'agence à la charge du vendeur. Bien non soumis au DPE. Les informations sur les risques auxquels ce bien est exposé sont disponibles sur le site Géorisques : www.georisques.gouv.fr. La présente annonce immobilière a été rédigée sous la responsabilité éditoriale de Mme Sandra Dujardin EI (ID 16395), mandataire indépendant en immobilier (sans détention de fonds), agent commercial de la SAS I@D France immatriculé au RSAC de SAINT NAZAIRE sous le numéro 792867343, titulaire de la carte de démarchage immobilier pour le compte de la société I@D France SAS.
Retrouvez tous nos biens sur notre site internet. www.iadfrance.fr.Informations LOI ALUR : Honoraires charge vendeur. (gedeon_6727_32546532)
- Type de bien : Appartement
- Surface : 59 m²
- Localisation : France - pays-de-la-loire - Loire Atlantique
- Ville : Saint-Brevin-les-Pins
- Code postal : 44250
- Annonce créée le 16/04/2026





