Vente Appartement 69720, SAINT-BONNET-DE-MURE france 252 000 €
Descriptif du bien
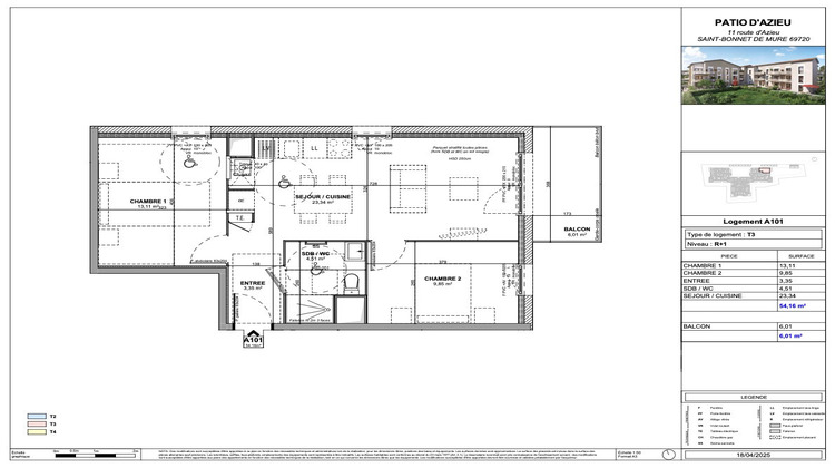
Situé au coeur de Saint-Bonnet-de-Mure, à proximité de toutes les commodités, dans un environnement résidentiel recherché, cet appartement s'inscrit dans une résidence à taille humaine, offrant un cadre de vie à la fois paisible et pratique. A proximité immédiate des commerces, écoles et transports, ce bien bénéficie d'un emplacement privilégié, idéal pour un quotidien facilité. L'appartement de 54,16 m2, actuellement en cours de réalisation, proposera une agréable pièce de vie lumineuse ouverte sur un balcon permettant de profiter pleinement des beaux jours. Conçu avec des prestations contemporaines et une attention particulière portée au confort thermique et énergétique, ce bien répondra aux dernières exigences en matière d'habitat. Possibilité d'acquérir une place de stationnement en supplément, un véritable atout dans ce secteur recherché. Travaux en cours - Livraison prévisionnelle : 2ème trimestre 2027 Ce bien constitue une opportunité idéale, aussi bien pour une résidence principale que pour un investissement patrimonial de qualité. Pour plus d'informations contactez ImmoConnect au 06 66 60 42 59 Les informations sur les risques auxquels ce bien est exposé sont disponibles sur le site Géorisques : www.georisques.gouv.fr
- Type de bien : Appartement
- Surface : 54 m²
- Localisation : France - Auvergne-Rhône-Alpes - Rhône
- Ville : SAINT-BONNET-DE-MURE
- Code postal : 69720
- Annonce créée le 31/03/2026




