Vente Appartement 56890, Saint-Avé france 167 000 €
Descriptif du bien
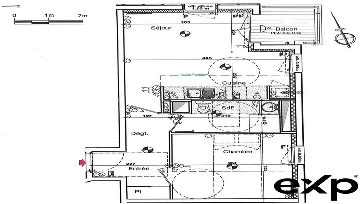
Saint-Avé Appartement T2 lumineux avec balcon, au coeur du bourg Nouveau prix : 167 000 FAI Surface : 42,41 m² Situé au coeur du bourg de Saint-Avé, cet appartement T2 de 42,41 m² offre un cadre de vie à la fois pratique, serein et lumineux. Il conviendra aussi bien à un investisseur à la recherche d'un placement rentable, qu'à un premier acquéreur ou à une personne seule souhaitant vivre dans un environnement calme, tout en profitant de la proximité immédiate des commerces et services. L'appartement se situe au deuxième étage d'une résidence récente avec ascenseur. Le séjour lumineux s'ouvre sur un balcon de 3,15 m² orienté Est, abrité du vent d'Ouest et bénéficiant d'une belle vue dégagée sur la verdure. La cuisine, à aménager selon vos envies, permet de concevoir un espace de vie à votre image. La chambre de 11,35 m², calme et confortable, offre un véritable bien-être au quotidien. La salle d'eau, équipée d'une douche à l'italienne, pourra être modernisée selon les goûts de chacun. La résidence, récente et bien entretenue, dispose de volets électriques, d'un visiophone et d'un ascenseur. Les charges de copropriété restent faibles pour le secteur, et la performance énergétique (DPE : D) garantit une consommation maîtrisée. Tous les commerces, services et le marché hebdomadaire sont accessibles à pied. La gare de Vannes et l'hôpital se trouvent à seulement quelques minutes, renforçant l'intérêt du secteur pour les actifs comme pour les investisseurs. Un garage fermé en sous-sol est également proposé en supplément, une option rare et recherchée dans le centre de Saint-Avé. Cet appartement combine confort, praticité et bon sens économique. Une belle opportunité d'achat pour habiter, investir ou vivre simplement au rythme du centre-bourg, à deux pas de Vannes.
Honoraires à la charge du vendeur. Dans une copropriété de 44 lots. Quote-part moyenne du budget prévisionnel 740 /an. Aucune procédure n'est en cours. Classe énergie C, Classe climat C Montant estimé des dépenses annuelles d'énergie pour un usage standard : entre 540.00 et 780.00 sur les années 2021, 2022 et 2023 (abonnements compris). Les informations sur les risques auxquels ce bien est exposé sont disponibles sur le site Géorisques : georisques.gouv.fr.
Votre conseiller eXp Realty : Rémy LAGADEC
Agent commercial (Entreprise individuelle)
RSAC 511 856 221 BOURG-EN-BRESSE





