Vente Appartement 74150, Rumilly france 254 500 €
Descriptif du bien
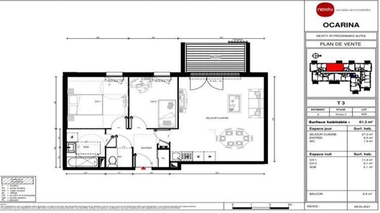
Soyez les premiers à découvrir ce nouveau lieu de vie, entre ville et nature... Faites le choix d'un habitat innovant, au bilan carbone performant, pour un lieu de vie plus naturel et plus sain pour vous et votre famille... Cette appartements 3 pièces, de 61.30 m² disposant d'un balcon et de stationnements privatifs est idéalement situé. A 5 min de l'A41 et 6 min du centre-ville en voiture > Arrêt de bus à 3 min à pied (ligne inter-urbaine Rumilly-Annecy) > Centre commercial à 3mn en voiture Et en plus, tous nos logements sont 'connectés' !! Grâce à la solution EUGENIE, pilotez, à distance, vos éclairages, volets et votre chauffage !!!
Honoraires à la charge du vendeur. Dans une copropriété. Aucune procédure n'est en cours. Non soumis au DPE Nos honoraires : https://files.netty.immo/file/sellingimmo/honoraires Les informations sur les risques auxquels ce bien est exposé sont disponibles sur le site Géorisques : georisques.gouv.fr
- Type de bien : Appartement
- Surface : 61 m²
- Localisation : France - Auvergne-Rhône-Alpes - Savoie (Haute)
- Ville : Rumilly
- Code postal : 74150
- Disponible le 01/09/2023
- Annonce créée le 12/12/2023



