Vente Appartement 76000, Rouen france 198 000 €
Descriptif du bien
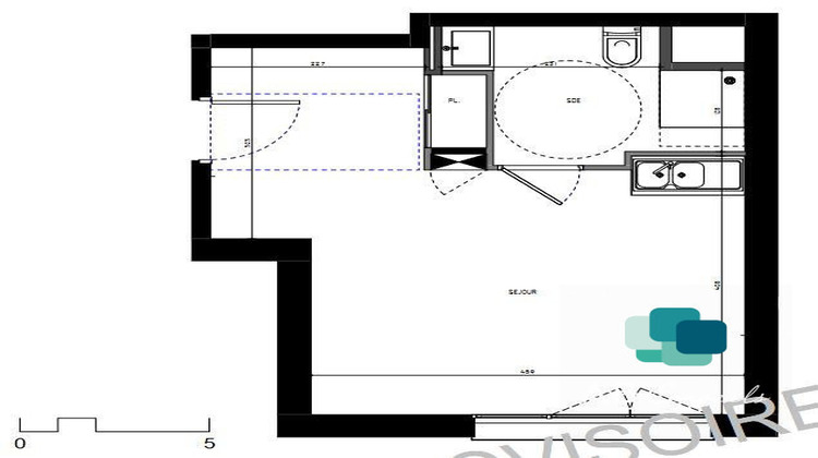
Réf :Appartement 1 pièce 35m2 orienté sud sur Rouen Venez découvrir notre superbe appartement dans un quartier très prisé proche de la gare de Rouen dans une résidence de standing proposant une architecture contemporaine, très belles prestations hautes de gammes. Cette résidence intimiste propose 8 appartements RARE A LA VENTE. Orientation optimale pour profiter pleinement d'une belle luminosité. La résidence est sécurisée avec ascenseur. Prestations intérieures soignées. Une architecture et un emplacement de qualité idéal pour un investissement. AB Conseils vous propose ce studio de 35,10M2 en rez-de-jardin exposé SUD. L'appartement comprend une entrée donnant sur la pièce de vie de 29m2, d'une salle de douche avec WC. Places de parking dans la résidence en sus. Prestations : Parquet massif contrecollé, porte d'intérieure stratifiée, chauffage gaz de ville indépendant, menuiseries alu de couleur. Interphone à l'entrée de la résidence. Plus d'infos : 06 70 58 19 63
Honoraires à la charge du vendeur. Non soumis au DPE. Les informations sur les risques auxquels ce bien est exposé sont disponibles sur le site Géorisques : georisques.gouv.fr.
- Type de bien : Appartement
- Surface : 35 m²
- Localisation : France - Normandie - Seine Maritime
- Ville : Rouen
- Code postal : 76000
- Disponible le 16/12/2024
- Annonce créée le 25/07/2025




