Vente Appartement 30230, Rodilhan france 62 000 €
Descriptif du bien
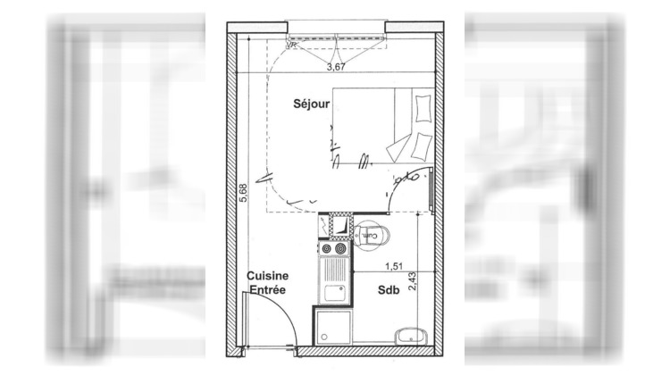
Rodilhan 10 mn Nîmes centre, joli Type 1 de + de 20.30 m2 hab en R+1 de la résidence récente Campus Camille. Type 1 composé d'une entrée, d'une jolie pièce de vie lumineuse, kitchenette semi aménagée et équipée, d'une salle d'eau avec wc. Ce type 1 bénéficie également d'un parking privatif. T1 actuellement libre de toute occupation et location. Idéal investissement locatif !!!
Bien en copropriété, pas de procédures en cours, prix de vente HAI 62 000 les honoraires sont à la charge du vendeur. 'Les informations sur les risques auxquels ce bien est exposé sont disponibles sur le site Géorisques : www.georisques.gouv.fr'
Honoraires à la charge du vendeur. Dans une copropriété de 80 lots. Quote-part moyenne du budget prévisionnel 600 /an. Aucune procédure n'est en cours. DPE en cours. Les informations sur les risques auxquels ce bien est exposé sont disponibles sur le site Géorisques : georisques.gouv.fr.

