Vente Appartement 69140, RILLIEUX-LA-PAPE france 115 000 €
1 / 5
Descriptif du bien
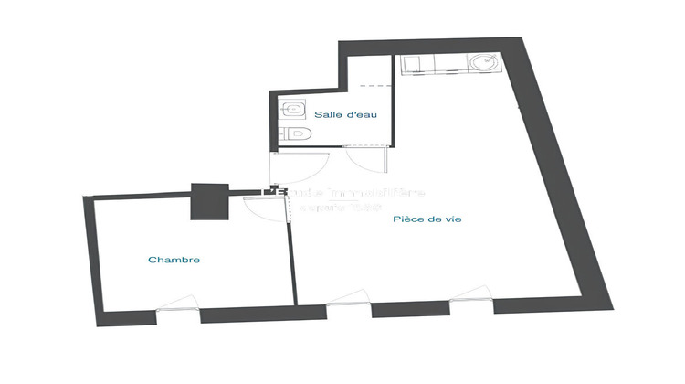
VENTE EN PLATEAU OU CLEFS EN MAIN (TRAVAUX + GESTION LOCATIVE POSSIBLE) Vous souhaitez acquérir un bien idéalement bien situé dans le centre de Rillieux-Village ? Ce plateau n'attend que vous. Vous pouvez acquérir ce T2 soit en plateau soit fini (+27.000 euros) Vous êtes à l'aise avec les travaux ? Vous souhaitez défiscaliser ? Idéal déficit foncier ! Nous pouvons également vous accompagner dans la gestion locative ! Ne tardez plus ! Sébastien ROY 0 6 2 9 9 8 0 6 5 5 Sebastien . roy @ e i f c a l u i r e . com Copropriété de 10 lots - dont 6 lots habitation.
- Type de bien : Appartement
- Surface : 43 m²
- Localisation : France - Auvergne-Rhône-Alpes - Rhône
- Ville : RILLIEUX-LA-PAPE
- Code postal : 69140
- Annonce créée le 30/09/2025




