Vente Appartement 35700, RENNES france 116 000 €
Descriptif du bien
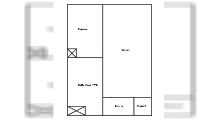
Studio à vendre Rennes – Campus Beaulieu – Université Rennes 1 – Quartier Gayeulles – Investissement étudiant Découvrez ce studio idéalement situé dans le quartier Gayeulles Longchamps Beaulieu, au cœur d'un secteur prisé par les étudiants. À quelques minutes du campus de Beaulieu Université Rennes 1, des classes préparatoires Joliot-Curie et Chateaubriand, Un secteur prisé, au cœur des grandes écoles rennaises : INSA, IUT, ESIR, ENSCR, Supelec.. Il offre un emplacement stratégique pour un investissement locatif rentable à Rennes. La résidence profite d'une excellente desserte : Métro B – stations Joliot-Curie / Chateaubriand à 500 m Bus C1, 70, 9 vers le centre-ville Ligne 50 vers la gare SNCF Accès rapide au centre-ville, aux commerces et à la vie nocturne rennaise Le quartier offre un cadre dynamique et pratique, avec de nombreux équipements sportifs et le parc des Gayeulles à proximité immédiate. Le studio (à rafraîchir) se compose : d'une entrée avec rangement, d'une salle d'eau avec WC, d'une pièce de vie avec kitchenette. Situé en fond d'allée, il bénéficie d'une vue agréable et d'un environnement calme, rare dans ce secteur très demandé. Un parking aérien privé complète ce bien, un véritable atout près du campus. Une opportunité idéale pour un logement étudiant ou un investissement locatif performant à Rennes (LMNP, déficit foncier..). Nombre de lots de la copropriété : 150, Montant moyen annuel de la quote-part de charges (budget prévisionnel) : 1100€ soit 91€ par mois. Les honoraires d'agence sont à la charge de l'acquéreur, soit 5,45% TTC du prix hors honoraires. Les informations sur les risques auxquels ce bien est exposé sont disponibles sur le site Géorisques : www. georisques. gouv. fr. Réseau Immobilier CAPIFRANCE - Votre agent commercial (RSAC N°851 460 212 - Greffe de RENNES) Gaëlle BRIEND Entrepreneur Individuel 06 35 50 42 67 - Réf.931491
- Type de bien : Appartement
- DPE : E - 231 à 330 kWh/².an
- GES : E - 36 à 55 kg eq CO2/².an
- Surface : 26 m²
- Localisation : France - Bretagne - Ile et Vilaine
- Ville : RENNES
- Code postal : 35700
- Annonce créée le 22/11/2025


