Vente Appartement 35200, RENNES france 150 000 €
Descriptif du bien
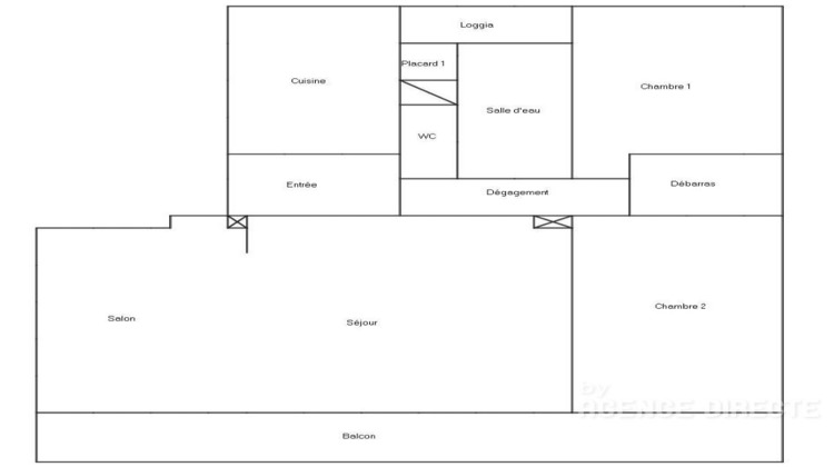
AGENCE DIRECTE l''immobilier à Frais Réduits ! Rennes sud - Hôpital sud - Square de Poméranie / Transylvanie Au 1er étage dans une petite copropriété avec ascenseur : Appartement T4 d'environ 73m² avec grand balcon comprenant: Entrée, double salon-séjour d'environ 30m² idéalement exposé avec double accès au balcon, cuisine aménagée et équipée, un espace buanderie/Arrière-cuisine, deux chambres dont une avec accès balcon, un espace dressing/rangement, une salle d'eau avec douche et un W.C séparé. Possibilité de créer une 3ème chambre / bureau... En complément : - Une grande cave privative en sous-sol avec accès sécurisé. - Un local vélo commun avec accès sécurisé Commerces, Métro et bus à proximité - Accès rapide à la rocade. Le prix de ce bien est Frais d'Agence Inclus. Visite virtuelle 3D immersive et prise de rendez-vous en ligne sur notre site Agencedirecte com . AGENCE DIRECTE estime gratuitement votre bien. Diagnostics Immobiliers remboursés en cas de vente par notre intermédiaire pour tout mandat simple ou exclusif contracté avant le 31/12/2026 Offre réservée aux vendeurs nous contactant spontanément (offre non cumulable - conditions en agence) "AGENCE DIRECTE RENNES Sud, Fréville, Bréquigny, Clémenceau, Rue de Nantes, Landry, Poterie, Sacré-Coeur, Ste-Thérèse" (4.53 % honoraires TTC à la charge de l'acquéreur.)
- Type de bien : Appartement
- DPE : C - 91 à 150 kWh/².an
- GES : C - 11 à 20 kg eq CO2/².an
- Surface : 73 m²
- Localisation : France - Bretagne - Ile et Vilaine
- Ville : RENNES
- Code postal : 35200
- Annonce créée le 24/03/2026









