Vente Appartement 35000, RENNES france 559 000 €
Descriptif du bien
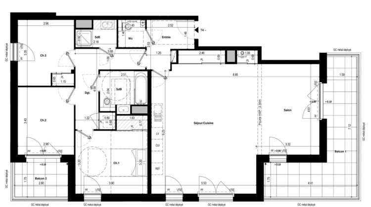
COURROUZE / ST JACQUES - A 500 m du métro - Appartement 4 pièces 110.16m² Sud Ouest - 5ème étage - ascenseur - balcons de 21.21m²- stationnements privatifs A 500 mètres du métro ligne B la Courrouze, proche des écoles, services et infrastructures, découvrez ce superbe appartement de 4 pièces de 110.16 m², situé au 5ème étage d'une résidence contemporaine aux normes RT2020 avec ascenseur. Baigné de lumière grâce à son exposition plein sud ouest, cet appartement offre un cadre de vie moderne et fonctionnel. Il se compose d'une entrée, d'un vaste séjour-salon avec cuisine ouverte, donnant accès sur un balcon de 17.12 m², idéal pour profiter des beaux jours. Côté nuit, vous trouverez trois chambres dont une avec accès sur son balcon privatif de 4.90m², une salle de bains, une salle d'eau ainsi qu'un WC indépendant. Ne manquez pas cette opportunité unique, parfaite pour un investissement locatif ou une résidence principale, alliant confort, modernité et praticité. Contactez-nous dès aujourd'hui pour plus d'informations ! Prix promoteur - Frais de notaire réduits. Les informations sur les risques auxquels ce bien est exposé sont disponibles sur le site Géorisques : www.georisques.gouv.fr. Photos non contractuelles - Suggestions d'aménagements. Copropriété de 24 lots (Pas de procédure en cours). Charges annuelles : 1500 euros.
- Type de bien : Appartement
- Surface : 110 m²
- Localisation : France - Bretagne - Ile et Vilaine
- Ville : RENNES
- Code postal : 35000
- Annonce créée le 18/02/2025


