Vente Appartement 51100, Reims france 125 000 €
Descriptif du bien
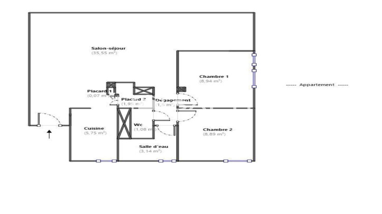
Situé avenue de Laon à Reims (51100), cet appartement de 67 m² bénéficie d'un emplacement pratique, à proximité immédiate des commerces, écoles et transports en commun.
Au sein d'une résidence sécurisée et clôturée, avec portail à badge et entrée d'immeuble sécurisée, ce bien se trouve dans un environnement calme et bien entretenu. La résidence dispose également d'un ascenseur, apportant un vrai confort au quotidien.
Construit en 1968, cet appartement de type 4 propose 2 chambres, un séjour agréable et une cuisine équipée fonctionnelle. Il conviendra parfaitement à un couple, une petite famille ou pour un investissement.
La copropriété a bénéficié d'une isolation par l'extérieur avec ravalement, un réel atout pour le confort thermique et les économies d'énergie. Une cave complète ce bien, offrant un espace de rangement supplémentaire.
Un appartement confortable et pratique, situé dans un secteur recherché de Reims.
Le bien comprend 2 lots, et il est situé dans une copropriété de 120 lots (les charges courantes annuelles moyennes de copropriété sont de 1800 ¤ et le syndicat des copropriétaires ne fait pas l'objet d'une procédure citée à l'article L. 721-1 du code de la construction et de l'habitation).
Les informations sur les risques auxquels ce bien est exposé sont disponibles sur le site Géorisques : www.georisques.gouv.fr
Prix de vente : 125 000 ¤
Honoraires charge vendeur
Contactez votre conseiller SAFTI : Cyrille MASNY, Tél. : 06 14 71 15 79, E-mail : cyrille.masny@safti.fr - EI - Agent commercial immatriculé au RSAC de SEDAN sous le numéro 507 423 333.Informations LOI ALUR : Soumis au régime de copropriété. Nombre de lots : 120. Quote part annuelle(moyenne) : 1800 euros. Honoraires charge vendeur. (gedeon_26118_32765033)




