Vente Appartement 51100, REIMS france 160 000 €
Descriptif du bien
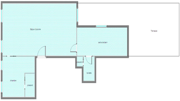
Découvrez cet appartement lumineux de 55m2 situé au 1er étage qui se compose d'une entrée s'ouvrant sur un grand salon séjour lumineux, une cuisine aménagée et équipée, 1 chambre et une salle d'eau avec WC séparé, le tout donnant sur une terrasse de 35m2. Vendu loué 760 euros (730 euros+30 euros) Caractéristiques principales : Belle pièce de vie spacieuse et lumineuse, Cuisine ouverte entièrement équipée, Une chambre, une salle d'eau avec wc séparé Une terrasse de 35m2 une cave Possibilité d'acquérir en sus un parking au sein de la copropriété. Surface : 55 m2 Référence du bien : 2874 Prix du bien : 166 700 euros Honoraires à la charge du Vendeur Honoraires TTC : 11700 euros Prix net vendeur : 155 000 euros Charges copropriété 480 euros/an -27 lots de copropriété -Pas de procédure en cours. Date de réalisation des diagnostics : 10/01/2025 DPE : F Consommation énergie Primaire : 399/kWh/m2/an Consommation énergie Final : 391/ kWh/m2/an GES : F Émissions de gaz à effet de serre : 88kgCO2/m2.an Chauffage individuel gaz, huisserie en PVC Double Vitrage. Les informations sur les risques auxquels ce bien est exposé sont disponibles sur le site Géorisques : www.georisques.gouv.fr Annonce rédigée par CLEMENT RABET agent commercial immatriculé au RSAC de Reims sous le numéro 910618032 Titulaire de la carte de démarchage immobilier pour le compte de la SAS ATELIER IMMO N° SIREN : 888 682 002 Copropriété de 27 lots (Pas de procédure en cours). Charges annuelles : 600 euros.


