Vente Appartement 56170, Quiberon france 626 000 €
Descriptif du bien
L'agence 'MON BIEN A LA MER', spécialiste de l'immobilier neuf sur les côtes Bretonnes, vous présente :
Rare : petite résidence de standing de 7 lots à 500m de la Grande Plage, 300m Centre, 900M Casino et Gare Maritime, 1km Port Haliguen.
Ascenseur, Parkings, livraison 2è semestre 2027.
Frais de notaire réduits.
De belles prestations : Parquet contrecollé, carrelage grand format, faïence toute hauteur, volets roulants électriques, ascenseur, parkings, menuiseries alu, chauffage électrique / ballon eau chaude thermodynamique.
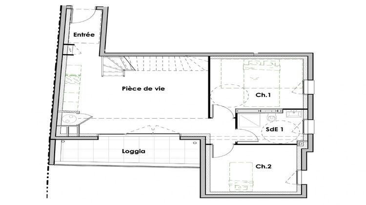
Superbe T4 aux 2 et 3è (derniers) étages ; exposition sud ouest, loggia de 10m2 :
- pièce de vie traversante de 27m2 (possibilité configurer une seule chambre sur le premier niveau pour avoir une pièce de vie traversante de 40m2)
- deux chambres sur le 1er niveau de 12,51 et 10,51m2, - salle d'eau douche à l'italienne, meuble vasque, sèche serviette, wc, entrée,
- petit appartement indépendant à l'étage : chambre de 21m2 carrez, salle d'eau de 11m2 carrez, palier (possibilité de configurer l'étage en deux chambres).
Double parking inclus.
Nous Consulter
Honoraires à la charge du vendeur. Dans une copropriété de 7 lots. Aucune procédure n'est en cours. Non soumis au DPE. Les informations sur les risques auxquels ce bien est exposé sont disponibles sur le site Géorisques : georisques.gouv.fr.
Votre conseiller MON BIEN A LA MER : Gérant - .fr MON BIEN A LA MER
Carte T CPI 2201 2018 000 025 040
RCP ACM IARD B1 7025278





