Vente Appartement 92800, Puteaux france 188 000 €
Descriptif du bien
Iad France - Neslie Canvot vous propose : Studio LOUÉ Moderne avec Terrasse à Puteaux - Idéal Investissement Locatif
Dans la charmante commune de Puteaux, à deux pas du quartier d'affaires La Défense, se trouve ce studio moderne et fonctionnel, parfait pour un investissement locatif.
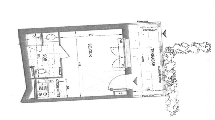
Ce studio, d'une surface de 19.45 m² loué 721¤ CC, est situé au sein d'une résidence de standing de 7 étages avec ascenseur, offrant un confort de vie optimal. Il se compose d'une pièce principale lumineuse, d'une kitchenette équipée, d'une salle d'eau avec WC et d'une agréable terrasse.
Grâce à ses équipements modernes tels que la fibre optique, l'ascenseur, l'accès PMR et la vidéophonie, la résidence assure un cadre de vie confortable et sécurisé pour ses résidents.
L'emplacement de ce studio est idéal, à proximité des commerces, des transports en commun (métro, RER, bus) et des espaces verts pour profiter de balades relaxantes.
En outre, la résidence est entièrement sécurisée avec un digicode et un interphone, offrant une tranquillité d'esprit supplémentaire pour ses habitants.
La terrasse privative est un véritable atout, offrant un espace extérieur privilégié pour profiter des beaux jours et se détendre en plein air.
Ne manquez pas cette opportunité et contactez-nous dès maintenant pour organiser une visite !
La presente annonce immobiliere vise 1 lot situé dans une copropriété de 295 lots au total et ne faisant l'objet d'aucune procédure en cours citée à l'article L. 721-1 du code de la construction et de l'habitation. Montant moyen mensuel de charges déclaré par le vendeur : 72.66¤ par mois (soit 871.88 ¤ annuel). Honoraires d'agence à la charge du vendeur.
Information d'affichage énergétique sur ce bien : classe ENERGIE D indice 194 et classe CLIMAT D indice 38. Les informations sur les risques auxquels ce bien est exposé, y compris l'obligation légale de débroussaillement, sont disponibles sur le site Géorisques : http://www.georisques.gouv.fr.
La présente annonce immobilière a été rédigée sous la responsabilité éditoriale de Mme Neslie Canvot mandataire indépendant en immobilier (sans détention de fonds), agent commercial de la SAS I@D France immatriculé au RSAC de soissons sous le numéro 528445935, titulaire de la carte de démarchage immobilier pour le compte de la société I@D France SAS.Informations LOI ALUR : Soumis au régime de copropriété. Nombre de lots : 295. Quote part annuelle(moyenne) : 871.88 euros. Honoraires charge vendeur. (gedeon_6727_33059526)
- Type de bien : Appartement
- DPE : D - 151 à 230 kWh/².an
- GES : D - 21 à 35 kg eq CO2/².an
- Surface : 19 m²
- Localisation : France - ile-de-france - Hauts de Seine
- Ville : Puteaux
- Code postal : 92800
- Annonce créée le 16/04/2026





