Vente Appartement 92800, Puteaux france 555 000 €
Descriptif du bien
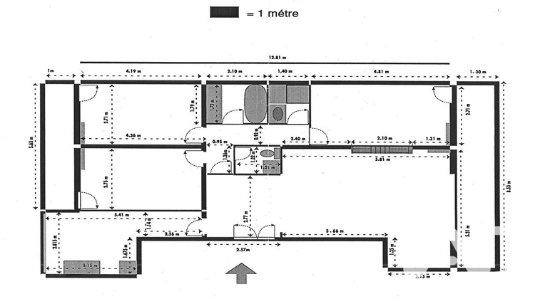
Iad France - Caroline BERTIN vous propose : 3/4 pièces baigné de lumière : Le potentiel que vous cherchiez à Puteaux
Vous cherchez de l'espace, du CALME et une LOCALISATION STRATEGIQUE aux portes de La Défense ? Venez découvrir ce 91 m² situé Square Léon Blum, au cOEur d'un quartier où tout se fait à pied.
Ce qui fait le coup de cOEur : Une belle pièce de vie : Un DOUBLE SEJOUR de 46 m² (salon + salle à manger) ultra LUMINEUX grâce à son exposition SUD-OUEST. C'est le cOEur de l'appart, idéal pour recevoir, avec un BALCON FILANT pour profiter des beaux jours.
EVOLUTIF selon vos besoins : Aujourd'hui configuré en 2 CHAMBRES, la salle à manger peut très facilement devenir une 3ème chambre spacieuse ou un bureau au calme.
La sérénité absolue : La RESIDENCE est SECURISEE 24h / 24 par un gardiennage permanent. C'est un vrai luxe pour la tranquillité d'esprit.
CUISINE INDEPENDANTE de 10 m², 2 SALLES D'EAU (pratique pour le matin ! ) et un WC SEPARE.
Aucun centimètre perdu, le PLAN est OPTIMISE
Une CAVE et une place de PARKING privative (indispensable dans le secteur).
Localisation :
À 12 min à pied du métro Esplanade de La Défense. Les commerces sont littéralement au pied de l'immeuble, parfait pour la vie de famille.
À noter : L'appartement est sain mais demande un rafraîchissement (notamment cuisine et l'une des salles d'eau). C'est l'occasion idéale de le mettre à votre goût et de valoriser votre investissement.
Un bien rare par ses volumes et sa modularité.
On organise une visite ?
La presente annonce immobiliere vise 3 lots situés dans une copropriété de 2513 lots au total et ne faisant l'objet d'aucune procédure en cours citée à l'article L. 721-1 du code de la construction et de l'habitation. Montant moyen mensuel de charges déclaré par le vendeur : 487.33¤ par mois (soit 5848 ¤ annuel). Honoraires d'agence à la charge du vendeur.
Information d'affichage énergétique sur ce bien : classe ENERGIE E indice 241 et classe CLIMAT E indice 63. Les informations sur les risques auxquels ce bien est exposé, y compris l'obligation légale de débroussaillement, sont disponibles sur le site Géorisques : http://www.georisques.gouv.fr.
La présente annonce immobilière a été rédigée sous la responsabilité éditoriale de Mme Caroline BERTIN mandataire indépendant en immobilier (sans détention de fonds), agent commercial de la SAS I@D France immatriculé au RSAC de NANTERRE sous le numéro 904492980, titulaire de la carte de démarchage immobilier pour le compte de la société I@D France SAS.Informations LOI ALUR : Soumis au régime de copropriété. Nombre de lots : 2513. Quote part annuelle(moyenne) : 5848 euros. Honoraires charge vendeur. (gedeon_6727_32553012)
- Type de bien : Appartement
- DPE : E - 231 à 330 kWh/².an
- GES : E - 36 à 55 kg eq CO2/².an
- Surface : 91 m²
- Localisation : France - ile-de-france - Hauts de Seine
- Ville : Puteaux
- Code postal : 92800
- Annonce créée le 16/04/2026





