Vente Appartement 92800, PUTEAUX france 570 000 €
Descriptif du bien
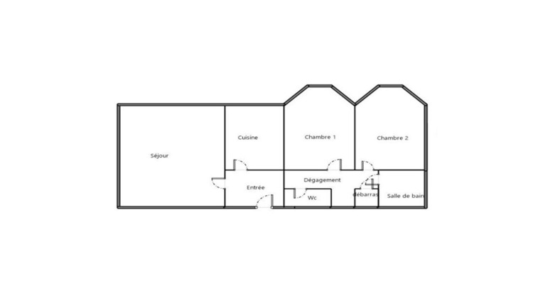
Situé au 8ème et dernier étage d'une copropriété de standing avec ascenseurs, dans le quartier recherché Pressensé - Rives de Seine, découvrez cet appartement clé en main de 74 m², entièrement rénové en 2020. Lumineux grâce à ses grandes baies vitrées, il offre une vue sur jardin intérieur, garantissant un calme rare en ville. Le confort est au rendez-vous avec climatisation récente, volets roulants centralisés et chauffage programmable. L'agencement est optimal : séjour de 26 m², cuisine moderne équipée, deux chambres, salle de bain, WC séparés et rangements. A proximité immédiate des commerces, écoles et transports (bus vers La Défense, gares de Puteaux et Belvédère). Une place de parking en sous-sol et une cave complètent ce bien. Un bien rare, lumineux et prêt à vivre. N'hésitez pas à nous contacter au 01 46 98 09 09 pour plus d'information ou pour convenir d'un rendez vous dans les meilleurs délais! Vous avez un projet immobilier? Vente, location, gestion, estimation ? Venez nous en faire part, nous sommes à votre écoute! Retrouvez l'ensemble de nos annonces sur notre site internet. (3.64 % honoraires TTC à la charge de l'acquéreur.) Copropriété de 189 lots - dont 60 lots habitation. (Pas de procédure en cours). Charges annuelles : 2128 euros.
- Type de bien : Appartement
- DPE : D - 151 à 230 kWh/².an
- GES : B - 6 à 10 kg eq CO2/².an
- Surface : 74 m²
- Localisation : France - ile-de-france - Hauts de Seine
- Ville : PUTEAUX
- Code postal : 92800
- Annonce créée le 24/02/2026






