Vente Appartement 44390, PUCEUL france 159 600 €
Descriptif du bien
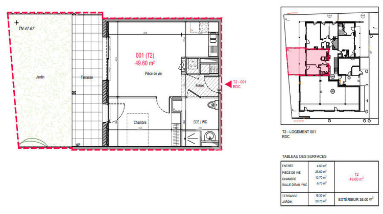
Idéalement situé au coeur du bourg de Puceul, ce T2 du programme Îlot Marguerite coche toutes les cases : cadre de vie agréable, environnement dynamique et à seulement 20min de Nantes. Ici, tout est pensé pour votre confort : une résidence élégante, parfaitement intégrée au centre-bourg, des matériaux durables et des performances énergétiques conformes RE 2020 et adaptée aux nouveaux seuils RE2025. Côté intérieur: Luminosité, fonctionnalité et bien-être : pièce de vie ouverte, grandes baies vitrées, espaces optimisés sans oublier un extérieur privatif (jardin, terrasse ou balcon) pour profiter pleinement. Un projet qui a du sens, ancré dans l'histoire locale, et éligible à la Loi Jeanbrun pour optimiser votre investissement. Je vous invite à venir me rencontrer en agence ou à me contacter afin d'échanger sur votre projet et découvrir ce bien plus en détail. Agathe Chignard Agent Commerciale - RCS: 939987137 Copropriété de 9 lots. Agathe CHIGNARD (EI) Agent Commercial - Numéro RSAC : - .
- Type de bien : Appartement
- Surface : 49 m²
- Localisation : France - pays-de-la-loire - Loire Atlantique
- Ville : PUCEUL
- Code postal : 44390
- Annonce créée le 07/04/2026



