Vente Appartement 20137, PORTO VECCHIO france 1 575 000 €
Descriptif du bien
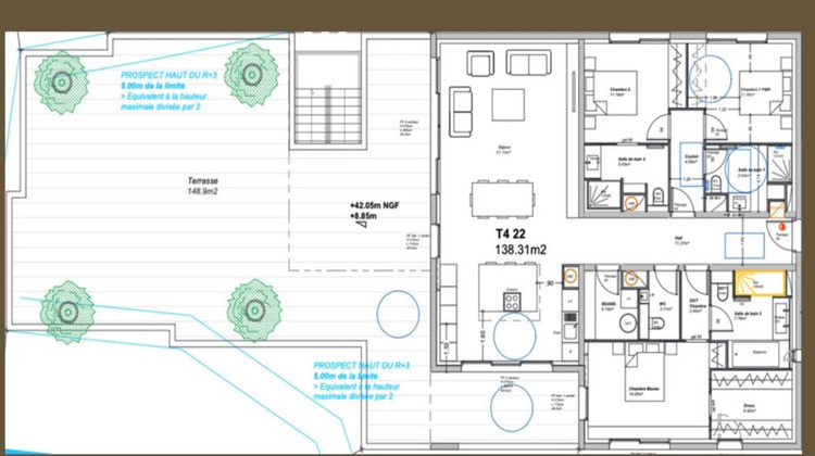
Au sommet d'une résidence de standing, ce penthouse de type 4, situé au troisième et dernier étage, incarne une vision rare et contemporaine de l'art de vivre à Porto-Vecchio. Développant 139 m² habitables, l'appartement s'ouvre sur une exceptionnelle terrasse de 149 m², véritable prolongement naturel des espaces intérieurs, pensée comme un lieu de réception, de détente et d'intimité absolue. Des volumes maîtrisés, une distribution élégante Séjour de 51 m², généreux et lumineux, aux proportions parfaitement équilibrées Suite master de 29 m², conçue comme une parenthèse de confort et de raffinement Circulations fluides, lignes épurées, continuité dedans/dehors naturelle Un cadre de vie privilégié A quelques minutes seulement des plages iconiques de Palombaggia et Santa Giulia, ce bien bénéficie d'un environnement recherché, alliant quiétude, nature préservée et accès rapide aux commodités du centre de Porto-Vecchio. La résidence Résidence fermée et sécurisée Ascenseur Architecture contemporaine aux lignes soignées Prestations haut de gamme Frais de notaire réduits Un bien rare, destiné à une clientèle confidentielle, à la recherche d'un penthouse d'exception, alliant emplacement, volumes et qualité de réalisation. Dossier complet et visite privée sur demande. Pour visiter et vous accompagner dans votre projet, contactez Virginie GILLET, au 0684973751 ou, par courriel à v.gillet@proprietes-privees.com. Selon l'article L.561.5 du Code Monétaire et Financier, pour l'organisation de la visite, la présentation d'une pièce d'identité vous sera demandée. Cette présente annonce a été rédigée sous la responsabilité éditoriale de Virginie GILLET agissant sous le statut d'agent commercial immatriculé au RSAC 793407172 AJACCIO auprès de SAS PROPRIETES PRIVEES, au capital de 44 920 euros, ZAC LE CHÊNE FERRÉ - 44 ALLÉE DES CINQ CONTINENTS 44120 VERTOU; SIRET 487 624 777 00040, RCS Nantes. Carte Professionnelle Transactions sur immeubles et fonds de commerce (T) et Gestion immobilière (G) n°CPI 4401 2016 000 010 388 délivrée par la CCI Nantes - Saint Nazaire. Compte séquestre n°30932508467 BPA SAINT-SEBASTIEN-SUR-LOIRE (44230). Garantie GALIAN-SMABTP - 89 rue de la Boétie, 75008 Paris - n°28137 J pour 2 000 000 euros pour T et 120 000 euros pour G. Assurance responsabilité civile professionnelle par GALIAN-SMABTP n° de police 28137.J Mandat réf : 437807- Le professionnel garantit et sécurise votre projet immobilier. Le prix est de 1575000 euros dont 75000 euros de frais d'agence charge acquéreur soit 1 500 000 euros net vendeur (5.00 % honoraires TTC à la charge de l'acquéreur.) Virginie GILLET (EI) Agent Commercial - Numéro RSAC : 793407172 AJACCIO - .
- Type de bien : Appartement
- DPE : A -< 51 kWh/².an
- GES : A -< 6 kg eq CO2/².an
- Surface : 138 m²
- Localisation : France - Corse - Corse du sud
- Ville : PORTO VECCHIO
- Code postal : 20137
- Annonce créée le 21/02/2026





