Vente Appartement 11210, PORT LA NOUVELLE france 349 900 €
Descriptif du bien
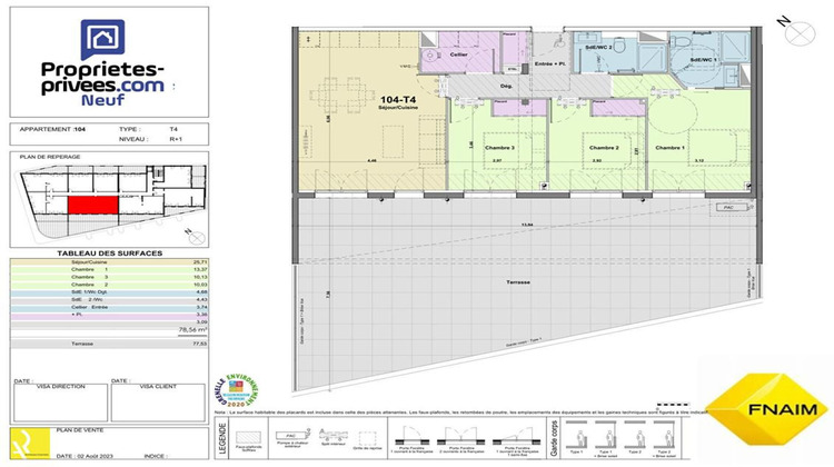
Découvrez la terrasse de 77 m2, de ce magnifique appartement de 78,56 m2, 4 pièces (3 chambres) dont une suite parentale de 18 m2, avec salle d'eau et WC. Les 2 autres chambres possèdent un grand placard ,et une salle d'eau à partager. Les 4 pièces principales (chambres et séjour) accèdent directement sur la terrasse. Vous trouverez Un cellier pour vos rangements et un Box de 37 m2 compris dans le prix Le prix de 349.900 euros box compris Frais à la charge du vendeur. (pas de frais à la charge de l'acheteur) NON SOUMIS AU DPE Pour visiter et vous accompagner dans votre projet, contactez Roger GIMENEZ, au 0660109919 ou, par courriel à ro.gimenez@proprietes-privees.com. Selon l'article L.561.5 du Code Monétaire et Financier, pour l'organisation de la visite, la présentation d'une pièce d'identité vous sera demandée. Cette présente annonce a été rédigée sous la responsabilité éditoriale de Roger GIMENEZ agissant sous le statut d'agent commercial immatriculé au RSAC 349746743 NARBONNE auprès de SAS PROPRIETES PRIVEES, au capital de 44 920 euros, ZAC LE CHÊNE FERRÉ - 44 ALLÉE DES CINQ CONTINENTS 44120 VERTOU; SIRET 487 624 777 00040, RCS Nantes. Carte Professionnelle Transactions sur immeubles et fonds de commerce (T) et Gestion immobilière (G) n°CPI 4401 2016 000 010 388 délivrée par la CCI Nantes - Saint Nazaire. Compte séquestre n°30932508467 BPA SAINT-SEBASTIEN-SUR-LOIRE (44230). Garantie GALIAN-SMABTP - 89 rue de la Boétie, 75008 Paris - n°28137 J pour 2 000 000 euros pour T et 120 000 euros pour G. Assurance responsabilité civile professionnelle par GALIAN-SMABTP n° de police 28137.J Mandat réf : 425070 - Le professionnel garantit et sécurise votre projet immobilier. Copropriété de 30 lots - dont 16 lots habitation. (). Charges annuelles : 1220 euros. Roger GIMENEZ (EI) Agent Commercial - Numéro RSAC : 349746743 NARBONNE - . Les informations sur les risques auxquels ce bien est exposé sont disponibles sur le site Géorisques : www. georisques. gouv. fr




