Vente Appartement 44380, Pornichet france 434 900 €
Descriptif du bien
L'Agence MON BIEN A LA MER, Spécialiste du neuf en Bord de Mer, vous présente :
TRAVAUX EN COURS :
rare : petite résidence de standing à 150m de la Place centrale de Pornichet et 300m du Port/plage.
Livraison fin 2026.
Ascenseur, Frais de notaire réduits.
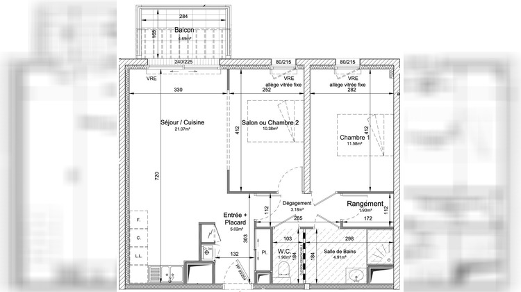
T3 au 2è étage, côté cour, comprenant :
- Séjour de 21m2,
- Deux Chambres de 11,58 et 10,38m2
- Salle d'eau douche à l'italienne, wc séparé, cellier, entrée avec placards.
- Parking en sus (30 000 euros).
Nous Consulter
Honoraires à la charge du vendeur. Non soumis au DPE. Les informations sur les risques auxquels ce bien est exposé sont disponibles sur le site Géorisques : georisques.gouv.fr.
Votre conseiller MON BIEN A LA MER : Gérant - .fr MON BIEN A LA MER
Carte T CPI 2201 2018 000 025 040
RCP ACM IARD B1 7025278
- Type de bien : Appartement
- Surface : 59 m²
- Localisation : France - pays-de-la-loire - Loire Atlantique
- Ville : Pornichet
- Code postal : 44380
- Annonce créée le 20/03/2026





