Vente Appartement 44380, Pornichet france 1 495 000 €
Descriptif du bien
L'agence 'MON BIEN A LA MER', spécialiste de l'immobilier neuf sur les côtes Bretonnes, vous présente :
Très rare : résidence neuve en front de mer en cours d'achèvement à PORNICHET.
Seulement 23 appartements de grand standing.
Situation exceptionnelle : sur la place centrale, marché plage commerces à pied.
Livraison printemps 2026, frais de notaire réduits.
Ascenseur, parkings sous sol & Boxs, local vélo, local planches surf, boites aux lettres connectés, plancher chauffant/rafraichissant, grandes surfaces vitrées toute hauteur, prises individuelles pour voitures électriques, pompe à chaleur, domotique : tout a été pensé pour votre confort.
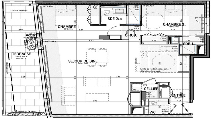
Cet appartement de 93,6m2 est situé au 2è étage, plein front de mer, exposé sud-ouest.
Le séjour de 50,8m2+cellier et la suite parentale s'ouvrent sur une superbe terrasse de 23,3m2.
La deuxième chambre possède aussi sa propre salle d'eau.
Placards dans chaque chambre.
Dans l'entrée : wc séparés et placards.
Parking sous sol inclus.
Nous Consulter pour visite du chantier.
Honoraires à la charge du vendeur. Non soumis au DPE. Les informations sur les risques auxquels ce bien est exposé sont disponibles sur le site Géorisques : georisques.gouv.fr.
Votre conseiller MON BIEN A LA MER : Gérant - .fr MON BIEN A LA MER
Carte T CPI 2201 2018 000 025 040
RCP ACM IARD B1 7025278
- Type de bien : Appartement
- Surface : 93 m²
- Localisation : France - pays-de-la-loire - Loire Atlantique
- Ville : Pornichet
- Code postal : 44380
- Annonce créée le 27/02/2026





