Vente Appartement 78300, Poissy france 243 000 €
Descriptif du bien
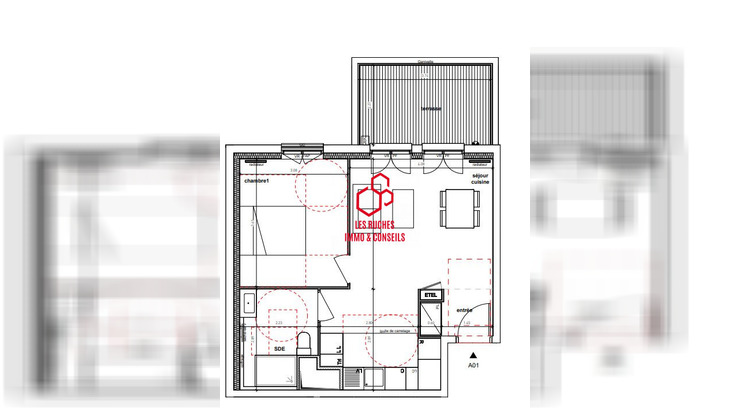
Découvrez ce magnifique appartement T2 neuf, niché dans un cadre de vie exceptionnel. Avec ses 43.40 m² de surface habitable, cet appartement allie modernité et confort pour vous offrir un cadre de vie idéal.
Imaginez-vous dans ce havre de paix, où chaque détail a été pensé pour votre bien-être. La terrasse de 9 m² vous invite à des moments de détente en plein air, parfaits pour des petits déjeuners ensoleillés ou des soirées étoilées.
L'appartement comprend une chambre spacieuse, une salle d'eau moderne et un WC séparé, le tout dans un état impeccable. La cuisine ouverte s'intègre parfaitement dans le salon, créant un espace de vie convivial et lumineux.
Situé à proximité de toutes les commodités, vous profiterez d'un accès facile à plusieurs crèches, une maternelle, des écoles élémentaires, des collèges, des commerces de proximité, des restaurants, un parc et jardin, ainsi que des services de santé. Les transports en commun sont également à portée de main, avec un bus à seulement 10 minutes à pied.
Ne manquez pas cette opportunité de vivre dans un appartement neuf, alliant design et fonctionnalité. Contactez-nous dès maintenant pour une visite et laissez-vous séduire par ce bijou immobilier.
- Type de bien : Appartement
- Surface : 43 m²
- Localisation : France - ile-de-france - Yvelines
- Ville : Poissy
- Code postal : 78300
- Annonce créée le 17/10/2025


