Vente Appartement 35730, PLEURTUIT france 248 280 €
Descriptif du bien
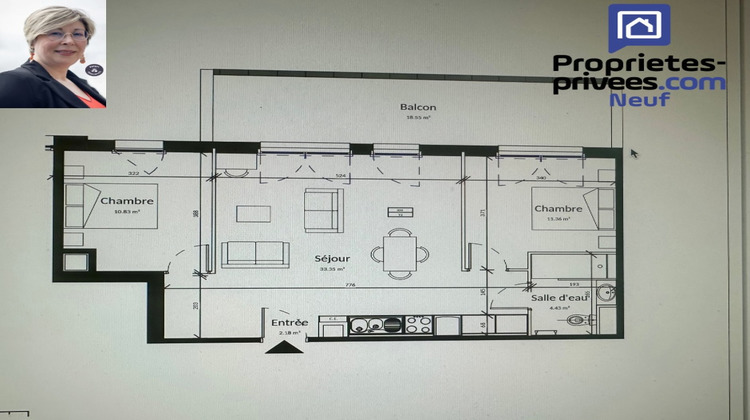
Rosa Lopes vous propose à la vente un appartement meublé situé au 3? et dernier étage d'une résidence d'affaires récente à Pleurtuit, à proximité immédiate de Dinard et de toutes les commodités. Idéal pour un investissement en LMP ou LMNP. Cet appartement d'une surface de 62,15 m² offre un espace de vie lumineux et fonctionnel, prolongé par un grand balcon de 18 m², parfait pour profiter d'un extérieur confortable. Caractéristiques principales : Appartement meublé, prêt à la location 62,15 m² habitables Balcon de 18 m² Situé au 3? et dernier étage Résidence d'affaires sécurisée Garantie décennale en cours Situation idéale : Pleurtuit, proche de Dinard et de toutes les commodités Parfait pour un investissement LMP/LMNP PRIX DE VENTE 248 280 euros HONORAIRES A LA CHERGE DU VENDEUR Une opportunité rare alliant emplacement stratégique, confort et rentabilité locative. Pour visiter et vous accompagner dans votre projet, contactez Rosa LOPES, au 0682437418 ou, par courriel à r.lopes@proprietes-privees.com. Selon l'article L.561.5 du Code Monétaire et Financier, pour l'organisation de la visite, la présentation d'une pièce d'identité vous sera demandée. Cette annonce a été réalisée sous la responsabilité éditoriale de Rosa LOPES agissant en qualité de conseiller immobilier indépendant sous portage salarial auprès de SAS PROPRIETES PRIVEES, au capital de 44 920 euros, ZAC LE CHÊNE FERRÉ - 44 ALLÉE DES CINQ CONTINENTS 44120 VERTOU; SIRET 487 624 777 00040, RCS Nantes. Carte Professionnelle Transactions sur immeubles et fonds de commerce (T) et Gestion immobilière (G) n°CPI 4401 2016 000 010 388 délivrée par la CCI Nantes - Saint Nazaire. Compte séquestre n°30932508467 BPA SAINT-SEBASTIEN-SUR-LOIRE (44230). Garantie GALIAN-SMABTP - 89 rue de la Boétie, 75008 Paris - n°28137 J pour 2 000 000 euros pour T et 120 000 euros pour G. Assurance responsabilité civile professionnelle par GALIAN-SMABTP n° de police 28137.J Mandat réf : 430137- Le professionnel garantit et sécurise votre projet immobilier Les informations sur les risques auxquels ce bien est exposé sont disponibles sur le site Géorisques : www. georisques. gouv. fr
- Type de bien : Appartement
- Surface : 62 m²
- Localisation : France - Bretagne - Ile et Vilaine
- Ville : PLEURTUIT
- Code postal : 35730
- Annonce créée le 29/11/2025



